Cucumber Pete and the Riot at the Seattle Mug Saloon–Fake News?

Pend d’Oreille News, 23 April 1892, 5:4-5.

[Note: This article uses the original spelling of Sand Point as two words instead of the current single word.]

Sand Point had a bit of a reputation in its youth, but even by the town’s questionable standards, the riot at the Seattle Mug saloon was a doozy.

Or was it?

In mid-February 1892, a dispatch from Spokane told of the terrible brawl at the opening of Sand Point’s new Seattle Mug saloon. The crowd included 300 “railroaders, cow punchers and mining men” as well as 27 of “the lowest women in the northwest.” Things soon degenerated into “bloodshed and riot.” A character known as Cucumber Pete started a fight and was shot by another man. Two of the women, Irish Mollie and Iolanthe, were wounded, perhaps mortally, and “Steamboat Johnny had his brains blown out.” Fortunately the US Marshal and Sheriff arrived with deputies to stop the mayhem and lock up more than two dozen of the “worst characters in the west.”

Newspaper editors could not resist this Wild West story. Within a few days, it appeared in dozens of papers all across the United States and into Canada, from Albuquerque and Macon to St. Louis and Buffalo and up to Montreal. While some newspapers omitted the mention of lowlife women, the story remained essentially the same, with occasional variations. The Potter Enterprise in Coudersport, Pennsylvania, evidently was unfamiliar with the term “cow punchers” and changed the fight participants to mining men and “cow purchasers,” leaving the railroaders out entirely.

Marion (Indiana) Chronicle Tribune, 18 February 1892, 3:5.

The sensational story raised the hackles of the editor of Sand Point’s Pend d’Oreille News. After quoting the dispatch as it appeared in the Helena Independent-Record, he wrote, “…it is an outrage that some obscure correspondent for a great daily paper can, without any [facts], send over the wires such a ridiculously blood-curdling dispatch as the above. There ought to be a remedy.” He added that such stories take up space to the detriment of legitimate news. A few days later, the Helena paper noted that J. L. Prichard, Justice of the Peace at Sand Point, denied that there had been any shootings or trouble of any kind.

The editor of the Spokane Falls Review also came to the defense of Sand Point. “It is a little strange that neither the people nor the authorities of Sand Point have heard of any such calamity,” he noted. “The only basis for such a report … was the opening of a dance house on the flats, with the usual drinking and noise which accompany such events, but nothing further of serious import.”

The Review editor, however, was less concerned about Sand Point’s reputation than that of his own town, which appeared in the dateline of every one of the dozens of lurid stories smeared across the country. He blamed a “youth” working for “the bogus paper of this city” for the original dispatch, evidently not the first time this had happened. Such stories, he complained, were “calculated to place Spokane in the light of being the center of all of the lawlessness and immorality of the northwest.” He dismissed the Seattle Mug story as “a small scuffle [which] took place in a dancehouse at Sand Point; no one was seriously hurt, and the affair was all over in five minutes.”

So was there any basis for the story of the Seattle Mug riot?

During late 1891 and early 1892, Sand Point was humming with activity. The Great Northern Railway was laying its tracks westward from Kalispell toward Sandpoint. To speed construction, GN had a spur built from the Northern Pacific line in Sand Point, running about a mile and a half west to the new railroad right-of-way, close to where Baldy Road crosses the tracks today. Hundreds of railroad cars carried rails, plates, and spikes on the spur, enabling crews to lay tracks both eastward toward Kalispell and westward toward Albeni Falls. This project brought large numbers of men to Sand Point for work. Paychecks often didn’t last long, squandered on booze, gambling, and women, all of which led to frequent fights with the resulting black eyes and bloody noses. There were some prospectors in the area and lots of railroad workers. But cow punchers—or cow purchasers? No way.

Even Sand Point boosters, like J. R. Law, acknowledged the rougher side of town. He pointed out that saloons and gambling were common anywhere there was a large payroll like that of the Great Northern. “It is not a genteel business,” he said, “and rough and ill-mannered men can always be found among those who follow railroad construction.” The editor of the Pend d’Oreille News defended Sand Point as “one of the most orderly towns in the northwest.” He attributed the bad reputation to outsiders who misunderstood the amount of business being done in town, where large sums of money were exchanged. The booming economy gave uninformed visitors the impression that the town was “wild and wooly” when this was normal for the headquarters of railroad construction.

The Missoula Weekly Gazette obviously did not believe the sensational story of the riot, and, tongue in cheek, wrote of “the blood and gore, black eyes, broken noses and the usual et ceteras.” It went on to say that Cucumber Bill (not Pete) whipped his opponents in eleven fights and wanted to make it an even dozen. Alas, he met his match, and “‘Cucumber’ became a pickle.”

The Seattle Mug saloon was again in the news just a month after the earlier story. This time, Thomas Meagher, better known as Steamboat Tommy, got drunk and picked a fight. Patrick Cunningham, manager of the bar, shot him in what he and other witnesses claimed was self-defense. Tommy had gotten his moniker from his years of working on Coeur d’Alene steamboats. One account of his death claimed that he was working at the Seattle Mug as a “chippy herder,” one who managed the women who worked there. He was known to be rough with women and feared by many.

Track laying on the Great Northern proceeded rapidly and Sand Point soon emptied when the laborers moved on down the line. With business dependent on large numbers of men, flush with money, the Seattle Mug folded by June 1892, just four months after opening.

The rough board building, located on the flats in the vicinity of today’s city beach, did not stand empty for long. After losing his livery stable to fire in early June, Harry Baldwin converted the Seattle Mug into a barn, enabling him to continue his business while he rebuilt. His new building was ready by late August and the Seattle Mug was once again left vacant, its past, notorious or not, quickly forgotten.

Sources:

“Seattle Mug” Opening, Marion (IN) Chronicle Tribune, 18 February 1892, 3:5; No title, Anaconda Standard, 22 March 1891, 10:2; Thriving Idaho Towns, Helena Independent-Record, 4 May 1891, 1:1-2; President Hill Going West, Helena Independent-Record, 11 November 1891, 4:3; Railroad Work, Missoula Weekly Gazette, 16 December 1891, 3:4; No title, Pend d’Oreille News, 13 February 1892, 5:3; Bloodshed in a Dance Hall, Las Vegas (NM) Daily Optic, 17 February 1892, 5:1-2; Lively Idaho Town, Buffalo (NY) Enquier, 17 February 1892, 1:6; Riot and Bloodsheed [sic] in Idaho, Carrol (IA) Sentinel, 17 February 1892, 2:1; Riot and Bloodsheed [sic] in Idaho, Lincoln (NE) Journal Star, 17 February 1892, 2:7; St. Louis (MO) Globe-Democrat, 17 February 1892, 3:2; A Word From Sand Point, Spokane Falls Review, 18 February 1892, 10:5-6; A Dance House Riot, Chippewa Falls (WI) Herald-Telegram, 18 February 1892, 1:4; Riot And Bloodshed, Columbus (NE) Telegram, 18 February 1892, 1:2; A Lively Opening, Albuquerque Journal, 18 February 1892, 1:7; How It Was Dedicated, Anaconda Standard, 18 February 1892, 1:3; A Northwestern Riot, Macon (GA) Telegraph, 18 February 1892, 1:6; A Wild West Scene, Knoxville (TN) Journal and Tribune, 18 February 1892, 1:6; A Spokane Society Event, Montreal (Quebec) Gazette, 18 February 1892, 8:5; “Seattle Mug” Opening, Clarksville (TN) Leaf-Chronicle, 19 February 1892, 8:1; Spokane In A Lurid Light, Spokane Falls Review, 19 February 1892, 6:3; No title, Pend d’Oreille News, 20 February 1892, 4:1; “Seattle Mug” Opening, Pensacola (FL) News, 20 February 1892, 1:6; The Sand Point Music Hall Opening, Seattle Post-Intelligencer, 20 February 1892, 2:2; No title, Helena Independent-Record, 21 February 1892, 8:3; Sand Point Items, Spokane Falls Review, 21 February 1892, 2:5; No title, Helena Independent-Record, 21 February 1892, 8:3; No title, Missoula Weekly Gazette, 24 February 1892, 4:5; In the Northwest, Coudersport (PA) Potter Enterprise, 24 February 1892, 2:2; No title, Prescott (AZ) Weekly Journal-Miner, 24 February 1892, 2:1; A Dance House Row, Bismarck (ND) Weekly Tribune, 26 February 1892, 2:5; Shreveport (LA) Times, 25 February 1892, 6:3; Sioux City (IA) Journal, 19 February 1892, 1:4; St. Paul (MN) Globe, 18 February 1892, 7:2; St. Albans (VT) Daily Messenger, 18 February 1892, 1:5; Murder At Sand Point, Seattle Post-Intelligencer, 15 March 1892, 1:6; Killed in a Dance Hall, Pend d’Oreille News, 19 March 1892, 4:1; Condensed News, Missoula Weekly Gazette, 23 March 1892, 5:4; The “Seattle Mug,” Missoula Weekly Gazette, 23 March 1892, part 2, 1:5; Business and Pleasure, Missoula Weekly Gazette, 30 March 1892. 1:6; Ad, Pend d’Oreille News, 23 April 1892, 5:4-5; Disastrous Conflagration, Pend d’Oreille News, 11 June 1892, 5:1; Local and Personal, Pend d’Oreille News, 25 June 1892, 5:3; Local and Personal, Pend d’Oreille News, 20 August 1892, 5:3.

Posted in Uncategorized | Tagged , , , , , , , , | 2 Comments

Those **** Californians!

E. L. Weeks & Co. store in the original townsite of Sandpoint, around 1890. The man in the white shirt, standing to the right of the doorway, is Burt Weeks, with his son, Percy, and daughter, Rena Idaho. (Image 10.1539, courtesy of Bonner County Historical Society)

We love to complain about newcomers. After all, they’re loud. They drive too fast. They think they own the place—and they probably do. They’re changing our town. **** Californians!

The Kalispel people might have voiced the same complaints when the first Californians arrived in 1881. That’s right—some of the earliest non-native settlers in Sandpoint were from California.

The Idaho Panhandle was a lively place during the early 1880s with thousands of men building the Northern Pacific Railroad. Moving from west to east, crews cleared, graded, built bridges, and laid rails. Lake Pend Oreille presented a major obstacle to progress until 1882 when the wooden trestle, stretching more than a mile and a half across the lake outlet, was finished.

Portion of an 1882 geological map showing mineral lands along the newly completed Northern Pacific Railroad. The railroad is shown as a solid red line.

All of this railroad construction required massive numbers of ties and bridge timbers, along with lumber for everything from railroad buildings to water tanks. Here’s where those Californians came in.

Robinson Jones Weeks, a rancher near La Honda, California, contracted to mill timbers and ties at the north end of the long trestle. He and his sons, Burt and Asa, packed up their sawmill equipment and headed north in the spring of 1881 for an adventure in the sparsely populated Idaho Territory. They had the mill running by mid-summer. Other family members joined them later that fall, including Cordelia and Ella, Robinson’s wife and daughter, and Emma and Percy, Burt’s wife and two-year old son.

Within a short time, the massive railroad construction project moved eastward into Montana, leaving behind the tiny settlement of Sandpoint. At that time, the town consisted of a handful of wooden buildings lining the railroad tracks on the narrow spit of land between Sand Creek and the lake. The enterprising Emma Weeks served as postmaster, agent for Wells Fargo & Co., and proprietor of the general store which bore her name. The Weeks family also owned and operated the Lake View Hotel.

Mary Baldwin (An Illustrated History of North Idaho, 1903)

1881 saw the arrival of three other Californians, James and Mary Baldwin and their adult son Harry. After moving from the San Francisco area, James Baldwin established a stage line connecting railroad camps across the Idaho Panhandle and into Montana. Harry Baldwin worked at a number of jobs before opening a restaurant in 1885 and later a hotel.

While the Baldwins remained in North Idaho for the remainder of their lives, the Weeks family returned to California. Robinson and Cordelia were the first to leave, departing sometime in 1883 after completing the contract with the railroad. The elder Weeks sold his sawmill to two men from Spokane Falls and transferred his interest in the hotel to son Asa.

Burt and Emma Weeks remained in Sand Point for ten years. During that time, their family expanded with the arrival of a daughter, Rena Idaho, in 1888. Three years later, Burt and Emma were ready to return to California so they sold their business to Ignatz Weil, another former Californian. He and his wife Irene had recently moved to Sandpoint from Helena, Montana. Mr. Weil was born in Austria but immigrated to the United States at the age of 18. During much of the 1870s and into the early 1880s, he lived in San Francisco with his brother, Leopold, working primarily in sales. Mrs. Weil was born in Kentucky but her family relocated to the Ukiah area of California when she was a small child.

Ad for Weil’s store, Pend d’Oreille News, 23 July 1892.

After settling in Idaho, the Weils became well-known citizens in Sandpoint and Bonner County. In the early 1900s, Weil platted his large land holding for an addition to Sandpoint that includes much of the south part of town. Their handsome home remains a local landmark on the corner of First and Superior, where the highway comes into town. In 1907 Mr. Weil was appointed the first clerk and recorder for the newly formed Bonner County. Although their fortunes collapsed in the early 1920s, the Weils remained in Bonner County for the remainder of their lives.

These early Californians laid a strong foundation for our community, contributing to the economy, infrastructure, and government and charting the course of development for Sandpoint and North Idaho.

Don’t you hate it when history challenges your stereotypes and world view?

[A confession: The writer grew up in Southern California but hopes that more than 50 years of living in Bonner County, working and raising a family, have helped to lessen the taint.]

References

J. M. Tiernan, Map showing Geological Formations and Mineral Lands near the Northern Pacific Railroad in Northern Idaho and Washington Territories, March 1882, on file, University of Idaho Special Collections; Roy W. Cloud, History of San Mateo County, California, vol. 2 (Chicago: S. J. Clarke Publishing Company, 1928, 320-323, 610-612; Norma T. Hohl, interview with her mother [daughter of Burt D. and Emma L. Weeks], partial typed transcript, n.d., pp. 32-33, 35-56, 40-42, Weeks file, Box B35, Bonner County Historical Society Archives; Kootenai County, Deed Record, Book A:24-26, Kootenai County Recorder’s Office; John M. Henderson, William S. Shiach, and Harry B. Averill, An Illustrated History of North Idaho, Embracing Nez Perces, Idaho, Latah, Kootenai and Shoshone Counties, State of Idaho (Spokane: Western Historical Publishing Company, 1903), 792, 854, 932; “A Trip to Lake Pend d’Oreille,” Northwest Tribune, 3 June 1881, 2:5; “Sandpoint Post Office, Bonner County, Idaho,” on Postmaster Finder, http://webpmt.usps.gov/pmt003cfm, accessed 12 October 2015; “Local and Personal,” Kootenai Herald, 18 July 1891, 5:2; Kootenai County, Deed Record, Book A:24-26, 59, 72; “Sandpoint Pioneer Dies,” Idaho Daily Statesman, 9 May 1922, 10; U.S. Census, 1870, Ukiah Township, Mendocino County, California, 14 June 1870, p. 8; U.S. Census, 1880, Ukiah Township, Mendocino County, California, 16 June 1880, p. 29; San Francisco business directories, 1874:677, 1875:743, 1879:892 1883:1055; Voter Register, 8th Precinct, 12th Ward, San Francisco County, 1882; Standard Certificate of Death, #74771, Ignatz Weil, died 1 April 1931; Certificate of Death, State of Idaho, #146542, Irene Weil, died 14 December 1945; N. W. Durham, History of the City of Spokane and Spokane County, Washington, vol. 1 (Spokane: S.J. Lewis, 1912), 536-537; “Sand Point Pointers,” Kootenai Herald, 8 August 1891, 5:3; “Sand Point Pointers,” Kootenai Herald, 22 August 1891, 5:3; “Sand Point Pointers,” Kootenai Herald, 5 September 1891, 5:2; “The Enterprising Man’s Column,” Kootenai Herald, 14 November 1891, 4:3; “Has Purchased Another Stock,” Pend d’Oreille News, 21 May 1892, 4:1; “Local and Personal,” Pend d’Oreille News, 28 May 1892, 5:2; Purchased Another Store, Pend d’Oreille News, 29 October 1892, 5:2; “Weil And Heitman Gang Have Cut Up The Pie,” Northern Idaho News, 8 February 1907, 1:5-6; “Gooding Names Officers For Bonner County,” Northern Idaho News, 15 March 1907, 1:5-6; “Commissioners Accept Weil Court House Site,” Northern Idaho News, 12 April 1907, 1:1-2; “Weil Builds Court House,” Northern Idaho News, 10 May 1907, 1:1-2; “Weil Wants To Sell The New Court House,” Northern Idaho News, 21 January 1908, 1:1-2; “Two Commissioners Buy The Weil Building,” Northern Idaho News, 17 March 1908, 1:5-6.

Posted in Uncategorized | Tagged , , , , , , , , , , , , , | 14 Comments

Lake Pend Oreille, 1952: When Trophy Fish Trumped National Defense

Dr. C. C. Wendle had uncovered a story that was explosive—literally. An unidentified civilian employee at the Navy’s research facility in Bayview told Wendle about plans to detonate a series of explosive charges deep down in Lake Pend Oreille. Alarmed, Wendle immediately contacted Idaho Senator Herman Welker who talked with Navy officials in Washington, DC. He also enlisted Jim Parsons, Sr., longtime publicist for the Sandpoint Chamber of Commerce, who began asking questions on his own.

By the time the story hit the newspapers in early February 1952, the rhetoric had heated up. The underwater explosions were described as “bombing,” a term that helped rally opposition to the Navy’s plans. Senator Welker did nothing to calm the waters, claiming that the “bombing” would “completely eradicate all fish life from the lake.”

As the story emerged, it became apparent that state officials had known about the Navy’s plans since at least August 1951 when the Department of Fish and Game granted preliminary permission for the tests. Governor Len Jordan told Parsons that he did not believe that any explosion would cause irreparable harm to the lake. The Fish and Game Commission, while concerned about the fish, was reluctant to interfere with the national defense program. They downplayed Welker’s hyperbole, saying that the explosions should not affect fish outside the immediate test area. To minimize any damage, they were working with the Navy to set small preliminary charges to chase fish away from the larger blast site.

Both sides of the issue had compelling arguments. The Navy claimed the tests were vitally important to the defense effort because the controlled explosions would provide information needed to keep sailors safe on their ships. In the midst of the Korean War, with World War II still fresh in memory, it was hard to dispute any national defense claim.

Wes Hamlet’s record-setting Kamloops was caught in late November 1947. (Photo from Sandpoint News-Bulletin, 4 December 1947.)

Those concerned about the fish also had a strong case. Photos of smiling fishermen holding world-record Kamloops had brought national attention to Lake Pend Oreille, attracting 60,000 people the previous summer and bringing much needed revenue to the local economy.

Public opinion throughout the region turned quickly and decisively against the Navy. The Sandpoint News-Bulletin explained, “What has aroused the people of this region as much as anything else seems to be the misnomer ‘bombing.’ People have envisioned planes dropping loads of bombs indiscriminately in the lake to the danger of fish and fishermen.” The paper suggested that the Navy would need to make “a mighty strong case to satisfy an aroused opinion.”

Less than a week later, the Navy launched its public relations campaign with a hearing at Sandpoint’s Community Hall. Captain A. G. Mumma, commanding officer at the Navy’s Bayview research facility, described the tests and presented data to show that no harm would befall any fish. The explosions would take place in deep water near Cape Horn, he said. The first test would be in April and, if there were no unprecedented damage to fish, the Navy planned several more. Tim Vaughan, regional biologist for Fish and Game, supported these tests and hoped to get accurate data on the effects of the detonations. To mollify critics, Navy officials promised to restock the lake to make up for any fish killed.

Excerpt of letter from Clarence C. Dill to Sen. Warren G. Magnuson, 14 March 1952.

While residents of North Idaho were concerned about fish, the people in Spokane worried about their drinking water. The city and surrounding area, with 200,000 people, depended on the Spokane aquifer for its water supply. Deep underground gravel channels at the south end of Lake Pend Oreille carried water to the aquifer, which accounted for a sizable percentage of Spokane’s water. City officials were concerned that the deep blasts might irreparably damage the gravel beds, adversely impacting the water supply.

Clarence Dill, former Democratic senator from Washington, met with Captain Mumma in mid-February 1952. Mumma explained the reasons for the tests but admitted that the Navy would proceed with the “bombing” regardless of test results. Dill promptly wrote to Washington Sen. Warren G. Magnuson to urge him to join forces with the Idaho delegation to introduce a bill to prohibit funding for the tests. While there is no evidence of such legislation, Magnuson did contact Dan A. Kimball, Secretary of the Navy, to say that he would hold the Navy responsible for any damage to the Spokane water supply. Kimball responded with additional assurances that the explosions would not damage the city’s water in any way.

The Bonner County Sportsmen’s Association voted to formally protest any explosive tests in Lake Pend Oreille. They worried that the first test would lead to many more in the future. A delegation, led by Dr. Wendle, met with a similar organization in Spokane to discuss how to proceed. Before the end of February, they had petitions circulating in Sandpoint and Coeur d’Alene to “protest the use of the water in Lake Pend Oreille for explosive experiments.” Within a matter of days, 6,000 people had signed. The protests caught the attention of national media, and one Sunday, CBS featured Captain Mumma, Jim Parsons, Sr., and Willard Taft, a Spokane city councilman.

The Sportsmen’s Association continued its opposition, lobbying Governor Jordan and questioning Fish and Game’s initial approval of tests. How was it, they wondered, that the department charged with protecting wildlife would grant the Navy permission to destroy wildlife? They worried that Lake Pend Oreille, one of the finest fishing lakes in the country, would become an explosives testing ground. Meanwhile Spokane councilman Taft threatened court action.

By early March, Senator Magnuson told Dill that he had done all that he could to stop the tests, including taking the issue to top officials. The Secretary of the Navy had said that Lake Pend Oreille was the only location that met all of the requirements for the tests and that the tests were “a vital part of the defense program.” Reluctant to challenge further, Magnuson said he had to “rely on the good faith of the Secretary and his associates, when they assert their investigation shows that much of the fear on the part of the local residents is ill-founded.”

Unlike Magnuson, the people of North Idaho were not reassured, and their protest petitions, along with the lobbying and adverse publicity, soon achieved a positive outcome. On March 7, 1952, Dan A. Kimball, Secretary of the Navy, wrote to Senator Magnuson that the Navy had “indefinitely postponed the explosive tests,” citing both the protests as well as a request from Governor Jordan.

(Photo from Sandpoint News-Bulletin, 6 November 1947.)

The 1952 fishing season opened May 3, the 7th annual observance of Kamloops & Kokanee Day. In anticipation of this popular occasion, the Sandpoint News-Bulletin wrote, “The lake the navy tried unsuccessfully to ‘bomb’ is going to get ‘bombed’ anyway—with hundred of flashing plugs and gaily painted lures.” While the winning fish that day did not set any records, everyone celebrated the big win for the lake’s fish.

The furor over the proposed “bombing” in Lake Pend Oreille taught both the Navy and Idaho officials a valuable lessons on the need for transparency. In the spring of 1952, citing the protests over the explosive testing, the Idaho State Land Board decided to hold a public meeting over the Navy’s request to moor a barge permanently on the lake. This electronics barge, with four civilian scientists and technical employees, would be anchored off Cape Horn and used in the measurement of underwater acoustics, with no explosives or poisonous materials involved. This research continues today at the Navy’s Acoustic Research Detachment at Bayview.

View of Navy’s Acoustic Research Detachment at Bayview, Idaho. (Photo from https://www.navsea.navy.mil/Home/Warfare-Centers/NSWC-Carderock/Who-We-Are/Bayview-Idaho/)

References:

Proposed Heavy Underwater Blasts Planned in Pend Oreille Protested, Sandpoint News-Bulletin, 7 February 1952, 1:7-8; Vital Navy Underwater Tests Will Go Forward in April in Pend Oreille, Sandpoint News-Bulletin, 14 February 1952, 1:7-8; Torrent of Protests Roll in After Navy Announces Pend Oreille Tests, Sandpoint News-Bulletin, 14 February 1952, Sec. 2, 1:1-3; Clarence C. Dill, Spokane, to Warren G. Magnuson, Washington, D.C., 15 February 1952, Folder 1, Box 89, Accession No. 3181-3, Warren G. Magnuson Papers, Manuscripts & University Archives Division, University of Washington Libraries; Push Opposition To Lake Blasts, Sandpoint News-Bulletin, 21 February 1952, 1:2; Dan A. Kimball, Department of the Navy, Office of the Secretary, Washington, D.C., to Warren G. Magnuson, Washington, D.C., 25 February 1952, Folder 1, Box 89, Accession No. 3181-3, Warren G. Magnuson Papers, Manuscripts & University Archives Division, University of Washington Libraries; Warren G. Magnuson, Washington DC, to Dan A. Kimball, Secretary of the Navy, Washington DC, 26 February 1952, Folder 1, Box 89, Accession No. 3181-3, Warren G. Magnuson Papers, Manuscripts & University Archives Division, University of Washington Libraries; Effect of Explosive Charges Under Water Analyzed by State Biologist, Sandpoint News-Bulletin, 28 February 1952, 1:4-5; Navy Blasts in Pend Oreille Are To be Carried Out, Kimball Indicates, Sandpoint News-Bulletin, 28 February 1952, 1:7-8; Warren G. Magnuson, Washington, DC, to C.C. Dill, Spokane, 29 February 1952, Folder 1, Box 89, Accession No. 3181-3, Warren G. Magnuson Papers, Manuscripts & University Archives Division, University of Washington Libraries; Albert G. Mumma, David Taylor Model Basin, Washington, DC, to Willard Taft, Commissioner of Public Utilities, Spokane, 29 February 1952, Folder 1, Box 89, Accession No. 3181-3, Warren G. Magnuson Papers, Manuscripts & University Archives Division, University of Washington Libraries; Warren G. Magnuson, Washington, D.C., to Clarence C. Dill, Spokane, 3 March 1952, Folder 1, Box 89, Accession No. 3181-3, Warren G. Magnuson Papers, Manuscripts & University Archives Division, University of Washington Libraries; Status of Blasts in Lake Remain Live Topic of Discussion in Region, Sandpoint News-Bulletin, 6 March 1952, 1:1-2; Dan A. Kimball, [Secretary of the Navy], Washington DC, to Governor Len Jordan, Boise, 7 March 1952, Folder 1, Box 89, Accession No. 3181-3, Warren G. Magnuson Papers, Manuscripts & University Archives Division, University of Washington Libraries; Albert G. Mumma, David Taylor Model Basin, Washington DC, to Willard Taft, Commissioner of Public Utilities, Spokane, 7 March 1952, Folder 1, Box 89, Accession No. 3181-3, Warren G. Magnuson Papers, Manuscripts & University Archives Division, University of Washington Libraries; Navy’s Explosive Tests in Pend Oreille Lake Ordered Postponed, Sandpoint News-Bulletin, 13 March 1952, 1:7-8; Furor Over Tests Regrettable, Says Explosives Expert, Sandpoint News-Bulletin, 20 March 1952, 1:6; Tests in Pend Oreille Are Definitely Scrapped, Sandpoint News-Bulletin, 3 April 1952, 1:1; Horde of Fishermen Expected at Pend Oreille Saturday, Sandpoint News-Bulletin, 1 May 1952, 1:7-8; Public Hearing on Mooring of Barge, Sandpoint News-Bulletin, 8 May 1952, 1:6; Mooring of Navy Barge Is Subject Of Friday Hearing, Sandpoint News-Bulletin, 22 May 1952, 1:6; https://www.navsea.navy.mil/Home/Warfare-Centers/NSWC-Carderock/Who-We-Are/Bayview-Idaho/

Posted in Uncategorized | Tagged , , , , , , , , , , , , , , , , , | Leave a comment

Play ball! Baseball in Early Sandpoint, 1895-1930

The batter connected with a fast pitch, sending the ball high into the air toward the water. Cheers erupted from the enthusiastic crowd lining the makeshift field in the area now included in City Beach. This was the first game for the newly formed Sandpoint Base Ball Association, played on the Fourth of July in 1895 against the Hope team. That day the men batted their way to an 18-18 tie, but two weeks later Sandpoint lost to Hope, 29-20.

Baseball was very popular nationwide and it seemed that every town, no matter how small, fielded a team. Since travel in North Idaho was difficult then, with long distances and few good roads, communities with baseball teams needed to be accessible either by railroad or steamboat. The Northern Pacific connected Sandpoint with Hope and Clark Fork to the east and Sagle, Athol, and Rathdrum to the south. The Great Northern ran west to Priest River and north to Bonners Ferry. By 1906 the Spokane International offered even more possibilities. In addition, steamboats traveled to virtually any point on the lake or river.

In August 1895 the Sandpoint team and its fans, including a number of women, boarded the Hustler and headed downriver to play a game with Seneacquoteen. It was a lopsided match with Sandpoint winning 60-13, but the host team was gracious and everyone had a grand time. Later that summer, Bonners Ferry humiliated the local team twice in games to determine the Panhandle championship. One Sandpoint player quipped later, “We have met the enemy and we are theirs.”

By the early 1900s, most of the Sandpoint games were against towns of similar size, such as Priest River and Bonners Ferry. The smaller communities played amongst themselves, with such contests continuing well into the 1930s. There were teams in Sagle and Morton, Colburn and Grouse Creek, Wrencoe and Dover, Selle and Bronx, and many more. Such games in rural areas gave residents a chance to socialize while having a fun game. 

Businesses also sponsored teams, contributing funds for uniforms in exchange for favorable advertising, especially when the teams were successful. George Walker’s clothing store on First Avenue sponsored the Walker Colts from 1905-1908 while druggist Charles Foss backed the Pill Rollers. Probably the best known name locally was Humbird Lumber Company which sponsored a team as early as 1907. The mill owner’s son was still a teenager then, working summers in the lumber yard and playing baseball on the side. His summer job may have inspired the first team’s name, Slab Pilers. 

While the Sandpoint team was good, the playing field by the lake often was a challenge depending on how much of it flooded each year. Such floods were an annual occurrence until Albeni Falls dam began regulating the lake level in the early 1950s. 1903 was one of those bad years and the team manager warned in late May that the upcoming game had to be canceled because the lake was rising too fast. It wasn’t until late July that the water went down, leaving flood debris and soggy ground. The team worked to clear the area and pack the dirt to make it smooth.

Such an unreliable field prompted the Sandpoint team and its fans to start looking for a more permanent location. They wanted to be able to enclose the field so they could charge a nominal admission to help offset costs. After looking at several possible locations, the team settled on land in the block bounded by Church and Pine, Fifth and Sixth. They were busy clearing the ground of stumps by mid-June 1904 and planned to build a grandstand and fence. The new ball park opened on the Fourth of July with a double-header against Newport. Sandpoint took both games, aided by their star pitcher, G. H. “Mickey” Fleming, who struck out 11 of the Newport players. The crowd enjoyed the grandstand and the team was happy that the new fence was tall enough to keep out little boys— except those who could climb well.

With the new ball park enabling a full season of play, Sandpoint set out to build a topnotch team, sometimes recruiting players from within the region. George Andrews, “the best twirler in the northwest,” had pitched for the Missoula Giants so the local team was excited when he moved to town in November 1904 to work for the telephone company. The following spring the Sandpoint team opened negotiations with another player from Helena, hoping to entice him to join the team. The investment paid off and the Sandpoint team won 14 of their 20 games, securing the regional championship. One of the local newspapers bragged that Spokane had sent its best players, “but one and all have returned to the city with their pelts hanging on the fence.”

Inland Empire champions, 1905.
Photo and caption from the Pend d’Oreille Review, 15 September 1905, page 1.

After just two seasons in their new ball park, the team was forced to look for a new location since the Spokane International Railway had acquired right-of-way (now the bike path) through the playing field. The team shifted their games south to some vacant lots on Euclid Avenue. They disassembled the grandstand and fencing and rebuilt them in time to play two Spokane teams on the new field.

Occasional ball games were organized simply for fun. Businessman John Southmayd was a longtime baseball fan and supporter of the local team. He was also a sizable man, leading him to organize a fat men’s team in 1906 and challenging the leans “to mortal combat.” There were a number of fat men’s clubs in the United States during the late 19th and early 20th centuries when male obesity was associated with wealth as well as good disposition. Members had to tip the scales at 200 pounds or more to qualify. Southmayd used the same weight standard and evidently had no difficulty finding enough men for a team. They planned to charge a ten-cent admission “to defray the expenses of the supper which will follow the awful slaughter.” 

The game in late June 1906 drew an enthusiastic crowd to the new ball grounds. There was humor and good-natured ribbing, including a burro enlisted as the ambulance after one player got dinged by a foul tip. The Leans were so chagrined by their 17-12 loss that they immediately asked for a rematch. They had no better luck the second time and lost again 26-23. The Fats claimed they would have gotten more runs but got tired of running the bases. The local newspaper reported that two of their players “showed lack of wind and had to be inflated during the game.” Occasional contests between the Fats and Leans continued into the 1920s.

Maintenance of the playing field became an issue in 1908 when the grass in the outfield went unmowed. After a rain the long wet grass made quick moves especially difficult for fielders.  When the city council and the school board played, fielder George Walker missed a ball and then spent so long trying to find it in the tall grass that the school board scored a home run. The Sandpoint ball team promised to cut the grass before the next game. 

As the area near the ball park began to fill with more houses, some nearby residents asked the city council to declare the park a nuisance in 1909. Because of the complaints, the owner was reluctant to renew the lease but relented and extended the agreement for one more season after the team promised to keep the grounds clean. 

As the Tigers once again began looking for new quarters, a win-win solution emerged. The newly formed Sandpoint & Interurban Railway saw a chance to help the ball team while generating reliable income for the streetcar line. The tracks ran from downtown Sandpoint to Boyer Avenue and then north to the present-day airport where they turned east to Ponderay and Kootenai. The interurban company built a new ball field at this bend in the tracks. Recreation Park was ready for the Tigers’ first game against the Kootenai White Sox in late June 1910. Four streetcars carried fans from both Sandpoint and Kootenai to watch the White Sox win 6-2.

It quickly became apparent that the new ball park was not an ideal location because of its distance from Sandpoint. With little practice time, the Tigers played poorly in 1910. “But how in thunder are they going to get [practice]?” asked one writer. “The grounds are too far away and most of the members of the team work until six o’clock each day.” In addition, streetcar fares added to the Tigers’ financial woes. By 1911 the interurban offered free rides for training, but the team continued to struggle and played few games for the next two summers.

Recreation Park on opening day, May 4, 1913. Photo courtesy of the Bonner County History Museum.

The community rallied to help the baseball team once again in 1913. At a meeting in February, supporters agreed that any town the size of Sandpoint that did not have a ball team was “slowly mortifying.” They set out to recruit baseball talent, supported by businessmen who recognized the advertising potential connected with a winning team. Various fundraisers brought in enough money to pay off debt and buy new uniforms. The 1913 season opened on May 4 at Recreation Park with a game against Bonners Ferry. The cold wind did not deter more than 800 enthusiastic fans who crowded the stadium and edges of the field. Both teams played well but the Tigers ended on top, 7-3. 

What looked like a revival of former baseball glory never materialized. The location of Recreation Park remained a problem as attendance and ticket sales dropped. Teams coming from a longer distance sometimes were reluctant to play Sandpoint since their share of the gate receipts did not make travel worthwhile. Nonetheless, the Tigers continued to play nearby towns as well as a variety of teams traveling through the region. A game with the Chicago American Giants in April 1914 brought a record crowd to Recreation Park where the Tigers were trounced 10-1. Later in the season, Sandpoint beat a Japanese ball team from Meiji University in Tokyo. 

That same summer the Sandpoint team went to Spokane to play the Gonzaga University men just as a circus was setting up next to the playing field. In the course of a conversation between the elephant trainer and one of the Gonzaga staff, the men placed a $2 wager on the game. It wasn’t about winning or losing; the circus man simply bet that Sandpoint would score at least one run. It was looking like a poor choice by the bottom of the ninth inning when the Tigers were still at 0. 

At that point, the trainer decided to take his elephants to get a drink of water, walking them along the edge of the playing field. A Sandpoint player hit a long fly deep into right field—and under the last elephant. The Gonzaga fielder had to wait to retrieve  the ball, allowing one batter to score and putting another on third base. “Elephant ground rules seldom come up for interpretation,” noted the sports writer. The umpire moved each man back a base, but the next batter knocked both of them home, giving a final score of 6-2, and leaving the $2 in the elephant trainer’s hands.

The closure of the streetcar company in 1917 brought an end to Recreation Park so Sandpoint baseball returned to the beach area. With so many young men drafted into the military during World War I, it was hard to put together a good ball team. By 1919, many of the Sandpoint players were just out of high school, but they hoped to get some of the former players once Company A of the Idaho National Guard returned home. 

The Tigers got a new lease on life in 1920. O.J. Bandelin, one of the former players, was selected to coach the team. The town rallied with some funding and the club began to get the beach playing field ready for the season. At the same time, the Humbird team was building a new ball park on Boyer Avenue, across from what is now Lake Pend Oreille High School. The two teams decided to cooperate and evidently merged their players to make a stronger team. The Humbird Tigers began to attract large crowds once again, bringing 600 fans to watch a double header against Clark Fork.

The Tigers continued to play nearby towns during the 1920s, along with a variety of teams sponsored by organizations or businesses, such as the Blackwell Lumber Company team from Coeur d’Alene. With the proliferation of automobiles and the popularity of driving, competition extended to towns in Montana and British Columbia. 

Meanwhile, back at the beach, another group of men organized an informal Twilight League with four teams: lumbermen, businessmen, professional men, and clerks. Games started at 5:30 and ended after five innings. By the end of July 1922, the professionals led the league while the businessmen were at the bottom. Similar informal games continued off and on for many years.

Two former Tiger players, Mickey Fleming and Charles Tiggelbeck, tried to rally businesses to support the team in 1924. They hoped to raise enough money to pay the players a modest salary to compensate them for giving up holidays and Sundays to entertain the fans. At a team meeting, the players agreed to accept $15 for infielders and $10 for outfielders per game. Fundraising didn’t go as well as hoped, but the team decided to play anyway even if their compensation was less than expected. 

By June young boys had compounded the team’s financial situation by grabbing fly balls that went over the fence. During one game, the Tigers lost 20 balls, which cost $2 each. The team’s management fumed that the police should “arrest every kid caught making off with a ball.” Despite the financial worries, the Tigers played well that season. Three years later, they won 12 of their 15 games.

House of David junior baseball team, ca. 1918.

Traveling teams continued to visit North Idaho and the Tigers jumped at the chance to play. One of the most famous teams, the House of David, came in late April 1928 for a game on Humbird field. This was an Adventist cult in Benton Harbor, Michigan, whose founder mandated celibacy, forbade consumption of alcohol and meat, and banned shaving and trimming hair. With an emphasis on exercise, the group formed a baseball team in 1914 and their outstanding playing soon attracted attention. They dazzled crowds nationwide with their plays as well as their antics, and their flowing locks fascinated everyone. Sandpoint residents were so excited about the game that many stores decided to close early. The “Bearded Beauties” did not disappoint but the Tigers held their own through the 8th inning when the score was tied 5-5. The visitors then poured it on in the 9th, winning the game 11-5. The Davids returned the next year and trounced the Tigers 8-0.

The deteriorating economic situation did not stop people from playing baseball. Teams from Sandpoint, Bonners Ferry, Troy, and Creston, BC, formed the International League in 1930. The opening game featured Troy and Sandpoint, both of whom claimed to have the best team in years. Women and children were admitted free on the first day, but there was a 25-cent charge for “extra ladies.” The lively game ended with Sandpoint beating Troy 6-0, and by the end of the season the local team led the International League.

Advertisement for opening game of the 1930 season with the newly formed International League. Northern Idaho News, 29 April 1930, page 5.

A version of the Tigers played sporadically for the next couple of years but never regained its former strength. The closure of local lumber mills during the Great Depression likely affected many of the team as high unemployment sent men elsewhere to look for work. Sandpoint did not give up on the game, however, and the amateur teams still played, as they do to this day. They’re following the footsteps of the legendary Tigers whose players and ball fields were once a major part of Sandpoint summers.

Sources:

Live Items From Sandpoint, Silver Blade, 29 June 1895, 1:1-2; Sandpoint Items, Silver Blade, 6 July 1895, 1:3; Sandpoint Pointers, Silver Blade, 20 July 1895, 4:3;Sandpoint Notes, Silver Blade, 10 August 1895, 1:4; The First of the Series, Silver Blade, 7 September 1895, 1:1-2; Sandpoint Notes, Silver Blade, 21 September 1895, 8:1; Local Paragraphs, Kootenai County Republican, 27 May 1903, 3:1; Local Paragraphs, Kootenai County Republican, 22 July 1903, 3:2; Base Ball Fans Hold Meeting To Effect An Organization, Northern Idaho News, 17 June 1904, 1:1-2; Base Ball Park Opened, Northern Idaho News, 8 July 1904, 1:3-4; Local Paragraphs, Northern Idaho News, 4 November 1904, 10:3; Sandpoint To Have A Strong Base Ball Team This Season, Northern Idaho News, 31 March 1905, 1:5-6; Champions Of Inland Empire, Pend d’Oreille Review, 15 September 1905, 1:2-5; Local Paragreaphs, Northern Idaho News, 16 March 1906, 5:2; First Ball Game Sunday, Pend d’Oreille Review, 19 April 1906, 1:2; Grounds For New Baseball Park, Pend d’Oreille Review, 26 April 1906, 1:2; Sandpoint Wins First Ball Game, Northern Idaho News, 27 April 1906, 1:1-2; Local Paragraphs, Northern Idaho News, 4 May 1906, 5:2; Items of Local Interest, Northern Idaho News, 11 May 1906, 3:2; Fats and Leans to Play Ball, Pend d’Oreille Review, 17 May 1906, 1:4; Fats & Leans To Play Again, Pend d’Oreille Review, 21 June 1906, 1:5; Barker’s Barkers Met Their Waterloo, Northern Idaho News, 22 June 1906, 1:1-2; Fats Again Win Out, Pend d’Oreille Review, 30 August 1906, 10:1-2; Fats Win Again, Northern Idaho News, 31 August 1906, 5:2; Slab Pilers Victorious, Northern Idaho News, 25 July 1907, 8:4; Fats And Leans Cross Bats On Local Diamond Next Sunday, Northern Idaho News, 1 August 1907, 1:5-6; Fats Everlastingly Wallop The Leans, Northern Idaho News, 8 August 1907, 1:1-2; Local Paragraphs, Northern Idaho News, 23 June 1908, 6:3; Council Fixes Boundry [sic] Lines, Northern Idaho News, 23 February 1909, 8:1-2; No Salaries This Season, Pend d’Oreille Review, 26 March 1909, 10:2; Organize New Base Ball Club, Northern Idaho News, 8 March 1910, 5:3; Provision For Base Ball Park, Pend d’Oreille Review, 29 April 1910, 6:2; Base Ball Park Is Now Assured, Northern Idaho News, 3 May 1910, 6:1-2; Baseball Game Sunday, Northern Idaho News, 21 June 1910, 1:6; Kootenai Beats Sandpoint Tigers, Northern Idaho News, 28 June 1910, 1:3-4; Coeur d’Alene Wins Game From Tigers, Northern Idaho News, 19 July 1910, 1:5-6; Baseball Fans Ready For Organization, Northern Idaho News, 18 April 1911, 1:5; Baseball Fans Want Club This Summer, Northern Idaho News, 25 February 1913, 1:4; Baseball Team Is Now Assured, Northern Idaho News, 11March 1913, 1:6; Baseball Fans Well Pleased, Northern Idaho News, 8 April 1913, 1:6; Baseball Benefit Was Success, Pend d’Oreille Review, 18 April 1913, 1:2; Tigers Win Opener, Pend d’Oreille Review, 9 May 1913, 3:1-2; Record Crowd At Ball Game, Northern Idaho News, 21 April 1914, 1:6; Elephant Helps Out, Pend d’Oreille Review, 15 May 1914, 3:1-2; Japanese Ball Team To Play The Tigers, Northern Idaho News, 21 July 1914, 1:4; Local Players Trim The Japs, Northern Idaho News, 28 July 1914, 1:4; Game Of Unusual Interest, Pend d’Oreille Review, 4 September 1914, 1:2; Spirit Lake Will Play Ball Game Here, Northern Idaho News, 27 May 1919, 1:4; Playing Ball “Down On Flat,” Pend d’Oreille Review, 30 May 1919, 1:6; Baseball Meeting, Northern Idaho News, 30 March 1920, 1:5; In The Field Of Sport, Northern Idaho News, 13 April 1920, 5:1-3; Sandpoint Fails To Connect With Star Twirler’s Curves, Pend d’Oreille Review, 14 May 1920, 1:6; The Humbird’s To Play Here, Pend d’Oreille Review, 11 June 1920, 1:2; Home Teams Winners In Both Sunday Games, Northern Idaho News, 22 June 1920, 1:2; Humbird Tigers Continue Winning Streak, Northern Idaho News, 10 May 1921, 1:5; Tigers Take Game From Bonners Ferry, Pend d’Oreille Review, 27 May 1921, 3:1-2; Old Timers Start Twilight League, Pend d’Oreille Review, 14 July 1922, 1:6; Twilight Leaguers Play Strenuous Ball, Pend d’Oreille Review, 21 July 1922, 1:3; Baseball Meeting Called Thursday, Northern Idaho News, 26 February 1924, 1:3; Start Effort For 1924 Baseball Team, Pend d’Oreille Review, 6 March 1924, 4:1-2; Sandpoint Will Have Baseball Again This Year, Pend d’Oreille Review, 17 April 1924, 1:2; No title, Pend d’Oreille Review, 19 June 1924, 2:2-3; Four Ls Defeat Hillyard 2 to 0, Pend d’Oreille Review, 18 August 1927, 1:3; Ryan Ferguson, The religious sect that became baseball’s answer to the Harlem Globetrotters, The Guardian, 21 September 2016; House Of David Team, Bearded Ball Stars, To Play Here Friday, Pend d’Oreille Review, 26 April 1928, 1:4-5; Bearded Beauties Defeat Four L’s In Last Inning Batting Orgy, Pend d’Oreille Review, 3 May 1928, 1:4-5; Davids Win From Sandpoint, 8-0, Pend d’Oreille Review, 11 July 1929, 2:5; International Baseball League Formed, Northern Idaho News, 22 April 1930, 1:3; International Ball Opens Next Sunday, Northern Idaho News, 29 April 1930, 1:5; Ad, Northern Idaho News, 29 April 1930, 5:4-5; New International League Is Opened, Northern Idaho News, 6 May 1930, 4:2; Drop Close Game, Pend d’Oreille Review, 14 August 1930, 3:4.

Posted in Uncategorized | Tagged , , , , , , , , , , | 2 Comments

James Henry Towles of Hope, Idaho

James Henry Towles, ca. 1910.
Photo courtesy of the Bonner County Historical Society

James Henry Towles has intrigued me ever since I saw his photograph at the Bonner County Historical Society many years ago. Aside from his name, all I knew about him was that he was a Black man working as a saloon keeper in Hope, Idaho, in the early twentieth century. I wanted to know more and recently decided to see what I could find. I pieced together the outlines of his story using the federal census, deed records, city directories, and old newspapers.

Hope was a relatively new town when Towles arrived at least by 1901 and possibly several years earlier. The Northern Pacific laid tracks across the Idaho Panhandle in 1881-1882 and transcontinental trains were running a year later. There was little more than a small train station in Hope at first, but the town began to grow by the late 1880s when the Northern Pacific opened Highland House, a hotel catering to tourists. Hope became a railroad division point in 1888 with a roundhouse, shops, and employee housing. More than three hundred people were living there in 1900, all White except for a cluster of sixteen Chinese, mostly railroad workers, and one Black man, a hotel porter. 

Born in Missouri around 1857, James Henry Towles, better known as Henry, was in his 40s when he came to Hope. He was educated, at least well enough to read and write, and he settled down to make a life for himself in the small lakeside town. Between 1901 and 1908, he purchased four large lots below Highland Avenue, at the northwestern end of town, and nine adjoining lots above. He had a comfortable home, garden, and orchard on this property, with enough room for some farm animals. 

In 1902, the Kootenai County Republican reported that J. H. Towles, “a southern gentleman of experience in tobacco raising,” was trying several varieties of tobacco on his property. He had started plants in hot beds in March, transplanted them in June, and grew them to a height of eighteen inches by early October, a few weeks before his planned harvest. The four varieties that he planted were Twist Bud, Iron Oker, Yellow Prior, and Long Green. There were no further references to tobacco in the newspaper, suggesting that even the mild climate at Hope was not good enough for this crop.

Henry Towles also raised chickens, hogs, and at least one cow, and problems with all of the animals garnered attention in the newspapers. In 1905, Towles and another nearby rancher, Mr. Bullivant, regularly collected slops from one of the Hope restaurants to feed to their hogs and chickens. One batch of the food waste was tainted, most likely with strong lye from the kitchen, and caused the death of two hogs and twenty chickens at Bullivant’s place. Towles had even worse luck, losing five fine hogs that he had contracted to sell, along with seventy hens. An unhappy Mr. Towles told the newspaper, “Those two buckets of swill cost me a hundred and fifteen dollars.”

The cow landed Towles in a different kind of trouble. Officer Nugent impounded the animal in November 1910 when he found it roaming loose in Hope. This action angered Towles who complained that stock belonging to businessmen and members of the city council were allowed to roam the streets at will, with no consequences to their owners. This comment, labeled as “disrespect,” led to a hefty fine of $20, a lot of money in 1910.

Street scene in Hope, Idaho, ca. 1920s. The building in the foreground is the Jeannot Hotel. Just past this is the Rainier Hotel where Henry Towles tended the bar. The Rainier Hotel was torn down in 1999.
Photo courtesy of the Bonner County Historical Society.

This small scale farming was not the main source of income for Mr. Towles. He worked as a saloon keeper, probably in more than one bar over the years. He took over the Betz saloon in the Rainier Hotel in 1910. After hiring men to renovate the building, he opened his bar on February 10. His name periodically appeared in the newspaper in connection with his business. In one instance, he broke up a fight and later was called as a witness in the trial where “his testimony provided several amusing features and he had the court and jury laughing.” The defendant, however, did not find this funny and several months later accused Towles of allowing gambling in his saloon, threatening his liquor license. The board of commissioners, after hearing from Towles, took his side and granted the license.

In November 1905, Henry Towles helped solve the problem of “box car rustlers” who had been breaking into parked train cars in Hope to steal everything from coats and watches to booze and bacon. Three men walked into a saloon one evening and offered to sell bartender, Ezra Johnston, kegs of beer and cases of eggs at absurdly low prices. Johnston told them to come back later and after they had left, Towles, who had been dozing nearby, surmised that these were stolen goods. “You think too slow, Ezra,” he told the barkeeper. “I’m going after them.” He soon ran into a local man, serving as a fence for the robbers, who offered to sell Towles hams for fifty cents apiece. He agreed to take forty hams and some bacon. When the fence left, Towles woke Judge Dooley and a couple of other men. Together they caught the crooks red handed and recovered the stolen goods. The local fence served three months in the county jail at Rathdrum while the other two robbers each got a year in the state penitentiary. 

Henry Towles was a single man when he moved to Hope and he was still listed as single in the 1910 census. He did not always live alone, however. A widowed cousin, Emma Elgin or Elligan, lived with him in 1910, along with her young son. She died in a tragic accident that August. George Davis, a Black porter at the Rainier Hotel, invited Mrs. Elligan out for a rowboat ride on a beautiful summer day. Their rented boat soon began to leak, frightening the woman so much that she stood up to move closer to Mr. Davis, tipping them both into the water. Davis tried to rescue his companion but she never resurfaced. Mrs. Elligan, known around Hope as “Henry’s cousin,” was “a quiet, modest woman well liked by her neighbors,” according to the newspaper. “The entire community regret her untimely demise.”

At the time of the accident, Henry’s mother also was living with him on an extended visit from her home in Kirksville, Missouri. Later that year, he traveled to Missouri to see his mother just before she died. He returned from the trip a married man. The Pend d’Oreille Review reported that “Mr. Towles brought home a charming young bride and he has been distributing cigars freely to all the boys.” The paper noted that he had “a comfortable home on the hill at north Hope.” Unfortunately I could find very little about Henry’s wife whose name was Martha, evidently known as Mattie. She had died by 1931. 

Undoubtedly Henry Towles experienced racism, both subtle and overt, during his life in North Idaho. The incident with his cow, where he was slapped with an exorbitant fine for showing “disrespect,” is one example. The original photograph at the museum is labeled as “N—-r Henry,” and a life long Hope resident who I interviewed in the 1970s used the same epithet.

It’s also true that the local newspapers seemed to treat Mr. Towles like other men of the time. Articles about him almost never mentioned his race, and his occasional trips to Sandpoint or Spokane were noted just like the travels of other businessmen. He supported local community activities, donated to the Red Cross, and bought Liberty bonds during World War I. When the ladies of the Greater Hope Club wanted to raise money to build a sidewalk between Hope and East Hope in 1912, they solicited prizes from local businesses; Henry Towles donated a box of candy. Some Hope citizens took the train to Sandpoint in March 1913 to hear the famous Black educator, Booker T. Washington, speak to a capacity crowd at the Rink Opera House. The group, listed in the order given by the newspaper, included Dr. Knapp, Mrs. M. Wood, Miss Ethel Larson, Mr. and Mrs. Henry Towles, and Mr. and Mrs. Jones. 

Henry Towles’ job as a saloon keeper ended by at least January 1, 1916, when statewide prohibition went into effect, and he began working for the Northern Pacific shops in Kootenai. During the 1920s intermittent mentions in the newspaper reveal that he was living in Spokane or the Seattle area, returning periodically to check on his property in Hope. He was employed in the Northern Pacific yards in Tacoma in 1926 but returned to North Idaho around 1931 when he was listed in poor health. Towles sold his Hope home and property to Arthur Croy in 1937 and bought a place in nearby Clark Fork. He apparently lived there quietly until his death on January 10, 1941, at the age of 84. Reverend A. H. Morton presided at the graveside service when Towles was buried in Pinecrest Cemetery. His grave remains unmarked.

Note: Thanks to Dale Coffelt of Coffelt Funeral Services for information on the location of Henry Towles’ grave. Thanks also to Hannah Combs and Heather Upton for their assistance with the photograph collection and archives at the Bonner County Historical Society. 

Sources Cited:

Hope News Items, Kootenai County Republican, 25 April 1902, 1:5; Hope News Items, Kootenai County Republican, 3 October 1902, 1:5; Hope Brevities, Northern Idaho News, 14 November 1905, 4:3; Big Summer Resort, Pend d’Oreille Review, 17 November 1905, 4:3; Car Thieves At Hope, Pend d’Oreille Review, 24 November 1905, 1:1; Department of Commerce and Labor, Bureau of the Census, Twelfth Census Of The United States, Schedule No. 1.– Population, Idaho, Kootenai County, Hope Precinct, June 1900; Department of Commerce and Labor, Bureau of the Census, Thirteenth Census Of The United States: 1910 Population, Idaho, Bonner County, Village of Hope, 18 April 1910, Sheet 2A; No title, Pend d’Oreille Review, 28 January 1910, 6:1; Hope, Pend d’Oreille Review, 4 February 1910, 6:2; Hope, Pend d’Oreille Review, 22 April 1910, 4:3; Leaky Boat; Woman Drowned, Pend d’Oreille Review, 26 August 1910, 9:1; Young Colored Woman Drowned At Hope, Northern Idaho News, 23 August 1910, 6:1; No title, Northern Idaho News, 22 November 1910, 6:2; No title, Northern Idaho News, 20 December 1910, 17:2; Hope, Pend d’Oreille Review, 6 January 1911, 7:4; Hope, Pend d’Oreille Review, 23 February 1912, 4:3; Hope, Pend d’Oreille Review, 28 June 1912, 7:1; Case From Hope, Pend d’Oreille Review, 11 October 1912, 4:3; Jury Disagrees In The Case Of A. Fullgarth, Northern Idaho News, 15 October 1912, 1:5; [Democratic Nominations,] Justices of the Peace, Northern Idaho News, 15 October 1912, 6:3; Here And Around About, Pend d’Oreille Review, 10 January 1913, 5:2; No title, Pend d’Oreille Review, 21 March 1913, 4:2; Liquor Licenses Issued, Pend d’Oreille Review, 4 July 1913, 3:4; No title, Pend d’Oreille Review, 18 July 1913, 5:5; No Saloons At Lakeview, Pend d’Oreille Review, 15 August 1913, 1:2; 1914 Bonner County Directory, p. 474; Bonner County Subscribers to Red Cross Army Fund, Pend d’Oreille Review, 29 June 1917, 7:4; No title, Northern Idaho News, 26 March 1918, 4:3; Honor List Subscriptions to Liberty Bonds, Pend d’Oreille Review, 11 October 1918, 4:1; News From Our Neighbors, Hope, Pend d’Oreille Review, 16 July 1920, 6:1; Hope, Pend d’Oreille Review, 19 December 1920, 3:1; Neighbor’s News, Pend d’Oreille Review, 25 February 1921, 6:1; No title, Northern Idaho News, 30 March 1926, 3:2; Hope, Northern Idaho News, 10 February 1931, 3:1; Rites For James Towles To Be Held Tomorrow, Northern Idaho News, 17 January 1941, 5:2; Clarksfork Resident Summoned By Death, Sandpoint Bulletin, 16 January 1941, 8:1; Notice Of Sale Of Real Estate, Northern Idaho News, 7 February 1941, 4:4; Certificate Of Death, State Of Idaho, File No. 122725; Bonner County Deed Records, Book 4:327-328 and 384, Book 9:580-581, Book 10:390, Book 14:477-478, Book 15:108-109, Book 37:329-330, Book 50:432, Book 51:362, Book 57:452, Book 60:455-456, and Book 64:184-185.

Posted in Uncategorized | Tagged , , , , , , , | 20 Comments

A Little Extra Help for the Holiday Season

Pend d’Oreille Review, 20 February 1930, 7:2-7.

When I went to the grocery store recently, I was greeted by a group of volunteers collecting food for our local food bank. Like many others in Yokes that day, I added a few things to my cart to deposit at the front door when I left. This is all part of a long tradition of giving here in North Idaho. We collect money for Toys for Tots, canned goods for the various food banks, and coats to give to children in need.

I don’t know when this started in an organized way, but I suspect that people have been giving to others for longer than anyone can count. A little research shows that even in the dark days of the 1930s, local people worked hard to make sure that no needy family went without at least some gifts at Christmas.

The stock market crash in late October 1929 caused financial ruin for many investors and a sharp economic downturn for the country. Despite President Herbert Hoover’s efforts to stimulate the flagging economy and stem rising unemployment, things went from bad to worse. Nationwide unemployment rose from 3.2 percent in 1929 to almost 16 percent two years later. By the time Franklin D. Roosevelt was inaugurated in 1933, unemployment peaked at nearly 25 percent.

Here in North Idaho, Humbird Lumber Company, the largest employer in Bonner County, began cutting losses. It closed the sawmill in Kootenai in August 1930, the Newport/Oldtown mill a year later, and most of the operations at the huge Sandpoint sawmill by the end of 1931.  Hundreds of loggers, millworkers, and support staff were out of work.

Various organizations spearheaded local relief efforts in late 1930. The Chamber of Commerce offered to register unemployed people looking for work, promising to divide up available jobs among those needing help. The list grew to 81 names by early December and reached 90 a week later. Jobs were scarce, with just 11 men finding permanent work in the woods while others found only temporary jobs.

Members of two local clubs, Onward Sandpoint and Good Fellows, worked with the Chamber to identify needy families. In late November 1930, the Good Fellows launched a citywide drive to collect food, clothing, and bedding. Two days before Thanksgiving, the men canvased the community and found a “hearty” response, with everything from food and clothing to fuel and cash. Two local companies donated space in their refrigerated plants to store perishable foods. Local hunters donated game and a dairy products company promised 200 gallons of buttermilk each week, asking only that individuals bring containers. The Good Fellows were able to provide assistance to 40 families over Thanksgiving but reported that much more was needed.

With Christmas rapidly approaching, and looking rather bleak for so many, the Chamber of Commerce erected a community Christmas tree at the corner of First and Cedar, lighting it every night before Christmas. Additional decorations included “ropes” or swags of cedar boughs and lighted decorations at intersections. Unemployed men were given work collecting trees and branches to help make the downtown festive.

As the holiday plans proceeded, the Good Fellows realized a growing need for money as more families applied for assistance. Onward Sandpoint put on a benefit program December 16 featuring Mme. Bouley and “a peppy, beautiful group of dancers, all professionals,” who promised to amaze the patrons of the club with their “terpsichorean ability.” Two hundred people attended, pronounced it “the social success of the year,” and raised $100 for charity.

Sandpoint residents in 1930 also helped Santa bring presents to local children. Members of the Elks Club gave out candy and oranges to the kids who came to the Christmas Eve carol sing around the community tree. Over at the fire station, Chief Walter Keuhl had been repairing donated toys to put them in shape to give to children whose parents were unable to afford such gifts.

Pend d’Oreille Review, 1 January 1931, 1:3-5.

A year later, in 1931, the economic outlook was bleak but, once again, local citizens rallied to help needy families. Sandpoint firemen spearheaded the drive to gather used toys and food for those in need. They repaired the toys to “pristine newness” so children could have a surprise on Christmas morning. Their work was supplemented by a benefit event at the Panida Theater that gathered not only toys but more than 100 quarts of fruit and vegetables. Others in the community donated food and various organizations, including the Elks Club, Rebekahs, American Legion Auxiliary, and Civic Club, put together baskets with fresh fruit, meat, and canned goods. More than 70 families received these welcome gifts.

A committee in Sandpoint gathered in late 1933 to make Christmas a bit more cheerful for those less fortunate. A local newspaper suggested the motto, “Give not from the top of your purse but from the bottom of your heart.” Once again the Panida Theater hosted a charity event, and organizers stressed the need for practical items like food and clothes. The Red Cross and the local relief association distributed these to local families.

This pattern of local assistance continued through the 1930s, with an annual benefit at the Panida collecting donations of food, clothing, and cash while local firemen gathered, repaired, and distributed toys to children. Officials assured the newspaper in December 1934 that “No one was forgotten.” This included the residents at the county poor farm in 1935 when local merchants donated nuts, fruit, candy, and cigars, “. . . everything for a fine Christmas” for the 26 men living there.

Year after difficult year in the Great Depression, local residents reached out to help their neighbors who had fallen on hard times. If they could do it, there’s no reason that we cannot carry on this worthy tradition. If you’re able, drop off a few items for the food bank or send a check to Toys for Tots. There are lots of other wonderful organizations, too, from Angels Over Sandpoint and Kinderhaven to the Sandpoint Senior Center. Let’s give “from the bottom of our hearts” to make this a “fine Christmas” for everyone. And remember — while toys are needed at Christmas time, food is needed all year round!

To donate, send checks to:

Toys for Tots, Sandpoint Lions Club, PO Box 414, Sandpoint, ID 83864.

Bonner Community Food Bank, 1707 Culvers Drive, Sandpoint, ID 83864.

 

Sources:

“Will Provide Work Service,” Pend d’Oreille Review, 20 November 1930, 1:6; “Relief Work By Men’s Club,” Pend d’Oreille Review, 20 November 1930, 1:2; “Good Fellows Drive Success,” Pend d’Oreille Review, 27 November 1930, 1:7; “Give Deer To Poor Families,” Pend d’Oreille Review, 4 December 1930, 1:1; “Public Tree Now Assured,” Pend d’Oreille Review, 4 December 1930, 1:4; “City Echoes Xmas Spirit,” Pend d’Oreille Review, 11 December 1930, 1:2; “Relief Work Is Real Job,” Pend d’Oreille Review, 11 December 1930, 1:5; “Chamber Acts On Tree Plan,” Pend d’Oreille Review, 11 December 1930, 1:1; “Organize For Decorations,” Pend d’Oreille Review, 11 December 1930, 1:4; “Charity Club Date Is Set,” Pend d’Oreille Review, 11 December 1930, 1:6; “Charity Club Huge Success,” Pend d’Oreille Review, 18 December 1930, 1:6; “Toy Service Is Work Of Chief,” Pend d’Oreille Review, 18 December 1930, 2:7; “Christmas Quiet In Sandpoint,” Northern Idaho News, 29 December 1931, 1:6; “Annual Charity Event At Theatre Tomorrow,” Northern Idaho News, 16 December 1932, 1:2; “Many Benefitted By Relief Work,” Northern Idaho News, 6 January 1933, 1:3, 5:4; “Christmas Party Tonight,” Northern Idaho News, 15 December 1933, 1:5; “Charity Matinee Attracts Largest Crowd In History,” Northern Idaho News, 22 December 1933, 1:5; “None Forgotten At Yule Time,” Northern Idaho News, 28 December 1934, 1:3; “Gay Christmas At County Poor Farm,” Northern Idaho News, 27 December 1935, 1:6; “Inmates of County Farm Enjoying Holiday,” Northern Idaho News, 31 December 1937, 1:4.

Posted in Uncategorized | Tagged , , , , | 1 Comment

Billy Abbott’s Saloon

Abbott Building on the corner of First Avenue and Bridge Street, Sandpoint, March 2017.

Two buildings went up in smoke on that cold winter night. Working under difficult conditions, fire fighters managed to keep the flames from reaching a neighboring building but they were unable to save the two structures. By morning, the ruins still smoldered at the corner of First Avenue and Bridge Street.

While eerily similar, this was not the recent fire on February 11 that destroyed five businesses on that same corner. Instead, the fire broke out early in the morning of March 18,1912. It spread quickly in the wooden buildings and consumed the California poolroom and lodging house as well as the Sandpoint Hotel, cafe, and poolroom. An earlier fire on January 22 had destroyed four buildings in the same block of First Avenue, including C.F. Moody’s feed store, the Idaho rooming house, Silver Club Cafe, Denver Barber Shop, Eagle rooming house, Eagle soft drink parlor, Doyle’s clothing store, and George M. Walker’s clothing store.

Although the Sandpoint Hotel building was owned by Ignatz Weil, it had long been the home of William Abbott’s saloon. Abbott, better known as Billy, was a well known businessman in Sandpoint. He was in his early thirties when he came to town around 1903. Within a short time, Billy joined forces with Mr. Branson to open a restaurant and saloon in the recently completed Sandpoint Hotel.

Pend d’Oreille Review, 21 June 1906, 5:5-6.

Although the firm of Abbott & Branson failed by early 1905, Abbott continued the business on his own. He occasionally got creative with his advertising. For instance, in late 1905 he installed an outdoor sign depicting a camel carrying a jug of whiskey, standing in front of pyramids. “A camel can go eight days without drinking,” the sign read, “but who wants to be a camel?”

Billy clearly was a popular man about Sandpoint. When he returned from a trip in September 1907 with his bride, Helena, friends gave them an enthusiastic reception and the local band serenaded them at the Sandpoint Hotel well into the night. It didn’t hurt Billy’s popularity when he dusted the cobwebs off several old bottles of liquor that had been stored in his cellar and generously shared them with the well-wishers.

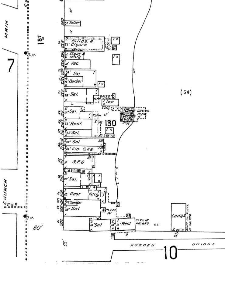
Portion of Sanborn Fire Map from January 1909 showing the east side of First Avenue between Main and Bridge Street. Note the 8 saloons (designated Sal. on the map) in just one block. Abbott’s was the one on the corner of First and Bridge.

Despite his success and popularity, it wasn’t a smooth road for Billy Abbott. During the early 1900s, moral crusaders throughout the nation, including Sandpoint, targeted saloons and their associated vices of gambling and prostitution. Abbott was one of several local saloon operators accused of running gambling establishments, first in 1903 and again in 1908; they were acquitted both times.

It was harder to counter the forces pushing for prohibition. In a hotly debated special election in May 1910, Bonner County voters approved a local option to end the sale of alcoholic beverages. Although Sandpoint voted 729 to 654 to remain “wet,” the final tally was 2,168 “dry” to 1,832 “wet.” (At that time, Bonner County included all of what is now Boundary County.) Before the new law went into effect on August 23, 1910, Billy Abbott held a sale on the remainder of his booze.

This law, of course, did not end the sale and consumption of illicit alcohol. Just two years later residents revoked the local option, voting 2,092 “wet” to 1,511 “dry” to end Bonner County’s first experiment with prohibition.

The timing was perfect for Billy Abbott’s plans. The two fires during the winter of 1912 had left a large gap on the east side of First Avenue between Church and Bridge Streets. Abbott began making plans to buy several of the lots so he could build a large brick building. There was one catch, however: he needed to be assured of a liquor license. With a limit of just six licenses in Sandpoint, down from twenty-one just two years earlier, competition was stiff. The city council granted five in late June, with the sixth to be given either to Abbott or Chris Peterson. At first it looked like Peterson would win but then Abbott’s supporters argued that he had purchased the lots on First Avenue with the assurance that he would be granted a liquor license. By late July 1912, the city council approved Abbott’s license.

As soon as he got the good news, Billy Abbott announced plans to build a large brick building on the corner of First and Bridge. Local architect S. Willis Foster designed the building with a full basement and three storefronts on the First Avenue level. The corner space was to be Abbott’s new saloon, with the other two spaces a restaurant and a movie theater. Work continued into 1913.

The new saloon held its grand opening on February 1, showing off the barrels of wines and liquors along the north wall, opposite the forty-foot oak bar that was salvaged and refurbished from the fire. There was a well-stocked wine cellar in the basement. Shortly after Abbott opened his saloon, a restaurant opened in the center portion of the new building. It was followed by the Gem Theater’s grand opening in March when throngs of patrons lined up to see the two-reel thriller, “The Vengeance of Durand,” along with a shorter comedy.

Billy Abbott had just a short run in his new saloon. Idaho voters decided to institute statewide prohibition starting the first day of 1916. Facing the inevitable, Abbott posted a sign in the window of his bar reading, “Don’t ask us what we’re going to do after January 1; what in —— are you going to do?” Less than two months later, Abbott sold his local holdings and moved to Astoria, Oregon, to run another movie theater. Nationwide prohibition was in effect from 1920-1933.

Remains of Abbott building after the fire on 11 February 2019.

Billy Abbott’s building has seen many different businesses over the last century, but the ones that matter the most right now are those that were destroyed in the recent February 11 blaze. The flames on that cold winter night burned Headlines Salon and The Hound Pizza, both in the former Abbott saloon; Sandpoint Chocolate Bear, in the former Grill Restaurant; China Kitchen, in the former Gem Theater; and Sandpoint Tattoo and Body Piercing, downstairs in the Abbott building.

While the Abbott building is now gone, we’re all waiting to see what takes its place, continuing the rich history on that busy corner of Sandpoint.

Sources Cited:

Kootenai County Republican, 10 April 1903, 4:2; “Charge of Gambling Is Not Sustained,” Kootenai County Republican, 7 October 1903, 1:6; Kootenai County Republican, 17 October 1903, 3:2; “They Enter Into Combine,” Northern Idaho News, 3 June 1904, 1:1-2; Northern Idaho News, 6 January 1905, 8:1-3; Ad, Pend d’Oreille Review, 15 September 1905, 5:5-6; Pend d’Oreille Review, 28 December 1905, 5:3; Pend d’Oreille Review, 1 February 1906, 5:3; Ad, Pend d’Oreille Review, 21 June 1906, 5:5-6; “Abbott-Biever,” Northern Idaho News, 12 September 1907, 4:3; “Brings A Bride Back With Him,” Pend d’Oreille Review, 12 September 1907, 1:5; “Tiger Again Captive,” Pend d’Oreille Review, 17 January 1908, 1:3; “Many Gambling Cases Have Been Commenced,” Northern Idaho News, 21 January 1908, 1:4-5; Department of Commerce and Labor, Bureau of the Census, Thirteenth Census of the United States: 1910—Population. Sandpoint City, Sheet 10-A; “Shake Dice Or Draw Straws,” Pend d’Oreille Review, 11 March 1910, 7:3-4; No title, Pend d’Oreille Review, 5 August 1910, 7:4; “Four Business Blocks Are Destroyed By Fire,” Northern Idaho News, 23 January 1912, 1:1-2; “Fire Destroys Two Buildings,” Northern Idaho News, 19 March 1912, 1:3; “Made The Gap Bigger,” Pend d’Oreille Review, 22 March 1912, 1:6; “Grant Many Licenses,” Pend d’Oreille Review, 28 June 1912, 1:5; “Rumblings Of Storm,” Pend d’Oreille Review, 28 June 1912, 1:3; “Abbott To Put Up A Brick,” Pend d’Oreille Review, 5 July 1912, 1:5; “Prolong License Row,” Pend d’Oreille Review, 5 July 1912, 3:1-2; “No Decision On Sixth License,” Northern Idaho News, 16 July 1912, 1:4-5; “Abbott Gets Sixth License,” Northern Idaho News, 23 July 1912, 1:5; “Abbott And Walker To Build,” Pend d’Oreille Review, 26 July 1912, 1:4; No title, Pend d’Oreille Review, 9 August 1912, 5:3; “Abbott Building Is Going Up,” Northern Idaho News, 8 October 1912, 1:6; “New Moving Picture Show,” Northern Idaho News, 24 December 1912, 1:3; “Abbott Building Nearly Completed,” Northern Idaho News, 28 January 1913, 1:3; “Abbott Building About Ready,” Pend d’Oreille Review, 31 January 1913, 1:5; “Three States Will Go Dry One Week From Tonight,” Pend d’Oreille Review, 24 December 1915, 1:5; “Picture Houses Change Hands,” Pend d’Oreille Review, 11 February 1916, 1:5; “Local Paragraphs,” Northern Idaho News, 6 June 1916, 3:4; “Abbott Corner Is Occupied,” Pend d’Oreille Review, 5 January 1917, 1:4.

Posted in Uncategorized | Tagged , , , , , , , , , , | 2 Comments

November 1918: Celebration and Sorrow

The telephone rang in the Humbird Lumber Company offices on the mid-morning of November 7, 1918, bringing the unexpected but joyful news that Germany had signed the armistice agreement with the Allies. Word spread fast as the raucous sounds of sawmill whistles, fire bells, and car horns filled the air. The Great War was over at last!

Towns and cities across the nation celebrated the Allied victory that day. In Sandpoint, businesses closed and residents poured into the downtown area. People decorated their cars for an impromptu parade, honking horns loudly as onlookers waved flags. The city’s fire trucks joined in and soon the parade had massed to two blocks long, moving noisily along Cedar Street and First Avenue. “Bedlam broke loose,” noted the local newspaper. “Staid old business men hopped upon motor trucks and blew whistles, threw confetti and yelled themselves into [a] state of hoarseness which will take days to mend.”

Alas, the celebratory spirit was dampened by evening when news arrived that the armistice had not yet been signed. In fact, the German delegation had not even been given the terms of agreement. Evidently the misinformation had been spread by an unconfirmed story from United Press. Nonetheless, local residents went to bed that night happy to have had an excuse to celebrate.

Less than a week later, Sandpoint, the nation, and indeed the whole world, had reason to cheer when the armistice was signed in France on the 11th hour of the 11th day of the 11th month. The news arrived in Sandpoint just after midnight on November 11, prompting a few blasts of the fire whistle to let residents know. Another celebration began at daylight, with more whistles and horns making sure that everyone knew that “Germany had really acknowledged defeat, and no mistake this time.” The crowds downtown swelled as hundreds of people poured in from neighboring towns and nearby logging camps for a celebration that lasted well into the night.

In anticipation of this news, city officials and a group of citizens had organized a more formal program to commemorate the end of fighting. In the morning, a nine-piece band led the parade of cars decorated with American flags as well as the flags of all of the Allied nations. A large truck was parked at the intersection of Second Avenue and Main Street to make a platform which not only held the speakers but also several veterans of the Civil War. The formal program continued with speeches, patriotic songs, and band numbers. By evening, a large bonfire was burning on a vacant lot at Cedar and Second where an orchestra provided music for a street dance.

Nobody seemed to mind that Sandpoint had celebrated the end of the Great War twice in less than a week. As one local newspaper noted, the first celebration “was of hilarious joy, the last of a more sensible appreciation of the tremendous meaning of the occasion.”

The November 11 armistice ended the bloody fighting that had ravaged Europe for more than four years. The losses from this conflict are almost incomprehensible today: an estimated 9 million combatants and 7 million civilians killed, with an additional 23 million soldiers and an unknown number of civilians left wounded.

American casualties were considerably lower than other Allied countries since the United States did not enter the fighting until April 1917. Nonetheless, the approximately 117,000 soldiers who died came from every state, spreading the pain—and pride—nationwide, including right here in Bonner County.

William D. Martin was the first Bonner County man to die in the war, killed in France on July 26, 1918. He was also the first in his regiment to die and all of his comrades gathered as he was buried on a hillside in France. His parents did not receive word of his death until nearly two months later when an official letter finally reached them. The chaplain of the 146th Field Artillery said that their son had died a hero. According to his letter, Martin’s last words were, “I am dying. Take care of the other fellow.” The local Presbyterian Church overflowed with mourners at a memorial service for the young soldier from Sandpoint.

While Martin was the first to die, others soon followed. The plaque at War Memorial Field on Ontario Street in the south part of Sandpoint lists just twelve names of Bonner County soldiers who died during World War I. I thought it would be an easy task to track these men down in the newspapers from 1918 to learn a bit more about them and where they died. Little did I know!

Using the old Bonner County newspapers, lists of war dead compiled by the Adjutant General’s Office in 1920, and a three-volume set of American casualties, also compiled in 1920, my list grew considerably.

Official lists separated the dead into three primary categories: those killed in action, those who died later of wounds, and those who died from disease or accident while serving overseas. I soon found that the names on the monument also included young men who had died of disease or some other medical crisis while enlisted in the military but still living in the United States. This category was disproportionately large since the autumn of 1918 coincided with the terrible influenza pandemic which erupted toward the end of the war, killing an estimated 50 million people worldwide.

Using these same categories, I have updated the list of Bonner County men who died while serving in the military during World War I. Please note that some of the names are spelled differently on the monument; I took the spelling that was used most often in my sources. Another caveat: I do not consider this list to be absolutely accurate. Please feel free to send me additions and/or corrections.

Killed in action:

—John R. Anderson, Priest River
—James Brown, Sandpoint
—James L. Gale, Sawyer
—Frederick W. Hendershot, Sandpoint
—Clarence Holland, Priest River
—William D. Martin, Sandpoint
—Joseph P. Mead, Clark Fork
—Anton Moe/Carl Anton Moe, Cocolalla/Hillyard
—Edward J. Morrison, Sandpoint

Missing in action, presumed dead:
—William Pierce, Bonner County

Died of wounds:
—John F. Dellinger, Sandpoint
—Edward Doyle, Samuels
—Moses Fond, Sandpoint
—Alfred Klingman, Sandpoint
—Ora Long, Morton/Spokane
—Charles H. Miller, Blanchard
—Ernest L. Miller, Sandpoint (died in July 1919, apparently from complications due to war injury)
—Carl V. Whidden, Hope

Died of disease overseas:
—Ray W. Ashley, Sagle
—Clarence Billips, Hope
—Harold C. Reed, Clark Fork

Died of disease while enrolled in Student Army Training Corps at college/university or during military training in the US:

—Herman Bernthal, Matchwood/Sandpoint
—Charles Clinton, Sandpoint
—Leland Eddy, Sandpoint
—Julius Finstad, Priest River
—Clarence Halverson, Valley (Vay)
—James Jewel Joy, Kootenai
—Ray G. Kaufman, Sandpoint
—Robert M. Kittleson, Priest River
—Joseph McEvoy, Priest River

Died of unknown causes while in the military during years of World War I:
—Dan Yee Jay, Sandpoint
—Harry D. Martell, Clark Fork

Died of disease while serving as Red Cross nurse in US:
—Mary O’Brien, Kootenai

Thus the list of twelve names on the monument at War Memorial Field has grown to thirty-three, magnifying the losses felt by the families and friends left behind in Bonner County in 1918. The names from subsequent wars have mushroomed as well, now spilling over to a second monument which lists those lost in Korea, Vietnam, and Iraq/Afghanistan. The names are prefaced with a dedication to “the people of Bonner County in the honor of the fallen men of the past, with the hope and prayer this field shall be for sport and games without the cloud of conflict and the threat of war, that the future participants shall play in peace forever.”

I, too, pray that this will come true.

 

Sources cited:

“Private Martin Dies A Hero,” Northern Idaho News, 15 October 1918, 1:1; “Bonner Boy Dead In France,” Northern Idaho News, 29 October 1918, 1:4; “Dies In France,” Northern Idaho News, 12 November 1918, 1:6; “City Celebrates Coming of Peace,” Northern Idaho News, 12 November 1918, 1:3ff; “Dies From Wounds,” Northern Idaho News, 3 December 1918, 1:4; “Another Golden Star,” Northern Idaho News, 3 December 1918, 3:6; “Bonner Boys Give Lives For Liberty,” Northern Idaho News, 3 December 1918, 5:3-4; “Experience Overseas Was Worth A Lot,” Northern Idaho News, 10 December 1918, 1:5; “Ray Kaufman Flu Victim,” Northern Idaho News, 24 December 1918, 1:2; “Priest River Boy Dies in Service,” Pend d’Oreille Review, 25 January 1918, 1:6; “Kootenai,” Pend d’Oreille Review, 29 March 1918, 18:3; “Card of Thanks,” Pend d’Oreille Review, 5 April 1918, 5:4; “Priest River Soldier Dies,” Pend d’Oreille Review, 12 July 1918, 1:6; “War Department Confirms Death of Private Wm. Martin,” Pend d’Oreille Review, 6 September 1918, 3:4; “Rossman Writes Battery C Has Received Three Citations, ” Pend d’Oreille Review, 4 October 1918, 1:6; “Influenza Takes Its Toll,” Pend d’Oreille Review, 25 October 1918, 1:5; “Nurse Dies In Spokane,” Pend d’Oreille Review, 25 October 1918, 1:6; “Clarksfork Soldier Dies in France,” Pend d’Oreille Review, 25 October 1918, 4:3; ‘Peace Flash Was A United Press Hoax,” Pend d’Oreille Review, 8 November 1918, 1:5; “Young Man Victim of Influenza,” Pend d’Oreille Review, 15 November 1918, 4:1; “Closing Days of War Take Sandpoint Boy,” Pend d’Oreille Review, 15 November 1918, 1:3; “City Celebrates Real War Victory,” Pend d’Oreille Review, 15 November 1918, 1:5-6; “Cocolalla Soldier Dies On Battlefield,” Pend d’Oreille Review, 22 November 1918, 1:3; “Bonner Boys Fall in Last Days of War,” Pend d’Oreille Review, 29 November 1918, 1:1; “Bonner’s Casualty List Increases,” Pend d’Oreille Review, 6 December 1918, 1:1; “Oden Bay Boy Dies At Portland,” Pend d’Oreille Review, 20 December 1918, 5:2; “Local Briefs,” Northern Idaho News, 27 May 1919, 7:4; “Captain Ernest Miller Dies At Presidio,” Northern Idaho News, 29 July 1919, 1:3-4; “Edward Doyle of Samuels Dies in Country’s Service,” Pend d’Oreille Review, 28 February 1919, 1:6; “City Brevities,” Pend d’Oreille Review, 3 January 1919, 5:2; “Hope Soldier Dies In Germany,” Pend d’Oreille Review, 31 March 1919, 1:4; “Captain Miller to Undergo Operation,” Pend d’Oreille Review, 23 May 1919, 1:4; “Bonner County’s Vacant Files,” Pend d’Oreille Review, 4 July 1919, 1:3-4; “To Bring Fallen Heroes Home,” Pend d’Oreille Review, 31 October 1919, 2:2; “Ora Long’s Body Laid to Rest at Westmond,” Northern Idaho News, 9 August 1921, 1:5; “To Bury Soldier Here,” Pend d’Oreille Review, 17 June 1921, 2:4; “Bury Soldier In Spokane,” Pend d’Oreille Review, 5 August 1921, 1:2; “Soldier Funeral At Westmond,” Pend d’Oreille Review, 5 August 1921, 1:3; “Remains of Young War Hero Will Be Laid to Rest Here,” Pend d’Oreille Review, 21 October 1921, 1:3; “Heroic Dead on Bronze Tablet,” Northern Idaho News, 22 July 1924, 11:4; “23 County Names on Memorial Tablet,” Pend d’Oreille Review, 17 July 1924, 1:3; “Twenty-Five Service Men Who Died, Honored,” Northern Idaho News, 9 April 1929, 4:3-4; W.M. Haulsee, comp., Soldiers of the Great War, Vol. 1 (Washington, DC: Soldiers Record, 1920), accessed through Ancestry.com; Biennial Report of the Adjutant General of the State of Idaho, 1917-1918, accessed through Ancestry.com; War Department, The Adjutant General’s Office, Compiled Data on Casualties of the American Expeditionary Forces by State or United States Possession, 1917-1919, File Unit: Idaho World War I Dead, AEF, Record Group 407: Records of the Adjutant General’s Office, 1905-1981, National Archives Identifier: 34389584; War Department, The Adjutant General’s Office, Commissioned and Enlisted Personnel of the Army Who Entered Service From the State of Idaho and Died While Members of the Expeditionary Forces, 27 October 1920, National Archives 1726747_Box1_Folder11-002; https://en.wikipedia.org/wiki/World_War_I; https://www.cdc.gov/flu/pandemic-resources/1918-commemoration/1918-pandemic-history.htm.

Posted in Uncategorized | Tagged , , , , , , , , , , , , , , , , , , , , , , , , , , , , , , , , , , , , , , | 2 Comments

Ford Day

Spring in North Idaho brings a wealth of colors, sounds, and smells that brighten our lives after the long, gray winter. Golden dandelions bloom exuberantly in lush green lawns; robins and chickadees noisily proclaim their territory; and lovely lilacs, lavender, white, and dark purple, perfume the air with their fragrance.

In Sandpoint, there’s another way we know that spring has finally arrived: the vivid colors, often loud noises, and occasional smell of exhaust from hundreds of old cars. For us, it’s the annual Lost in the 50s parade and car show that signal the official arrival of spring with its warm weather and fun and all that goes with the beautiful but all-too-short spring and summer seasons here in the Far North. We just celebrated the 33rd Lost in the 50s weekend (http://sandpoint.org/lostin50s/) when gray skies and cooler temperatures did not dampen the love of old cars for the thousands of people who flocked to town to admire the cars, model their poodle skirts, and bop to Buddy Holly blaring from speakers at the main downtown intersection.

While Lost in the 50s today features all makes and models of old cars, Fords dominated the market a century ago. The Model T, introduced in 1909, accounted for one out of every two cars in 1927, the last year that Model Ts were made. Much of the T’s success was due to rural Americans who appreciated its reliability on poor roads, the ease of repairs, and the availability of spare parts.

Sandpoint celebrated the beloved Model T in 1922 with Ford Day. The event on June 14 coincided with the Flag Day holiday and the downtown merchants’ big Sales Day. The planning committee hoped to draw large crowds to all of the events, and they lined up prizes for dozens of contests, a car parade, and a slow race. Ford day would be “the most unique celebration ever staged in the history of Sandpoint,” the Northern Idaho News promised, with a touch of hyperbole. “The flivvers will own the town that day. There will be old flivvers and new flivvers, quiet flivvers and noisy flivvers, modest flivvers and loud flivvers–all kinds of flivvers in fact–and prizes for the best of each kind.”

Weeks of advertising paid off and Wednesday, June 14, found more than 3,000 people thronging the streets of downtown Sandpoint. As the Fords chugged into town, their owners were urged to register in order to qualify for prizes to be awarded later on. Unfortunately the Sagle family with 11 members squeezed into their Model T failed to register and thus lost their chance to claim the prize for the largest family. It instead went to the Thomas Moran family of 7 who claimed their first prize — dinner at the St. James Cafe and a tire.

The parade of Fords through downtown provided a chance for their owners to claim a prize, although many of the categories might not be acceptable in today’s climate of political correctness. For instance, the oldest woman in a Ford won a sack of flour, 3 pounds of coffee, and a can of pineapple, while the oldest man got a hat. The fattest man (F.H. Rundell of Bonners Ferry, weighing in at 202 pounds) claimed his gallon of ice cream, and the fattest woman (Mrs. Hannah Folden, 230 pounds) took home a fancy cake. Mrs. Elmer Dreisbach drove a Ford with the 5 girls deemed to be prettiest, winning a box of candy for each of the girls. The noisiest car in the parade (William G. Phalon) was given a 6-month pass to the Gem Theater. Henry Samuels, owner of the oldest Ford (1911), claimed his prize of a quart of auto enamel, any color, and a pair of brushes. William Derr, from Clark Fork, with the most dilapidated Ford, won a haircut, shave, and bath at Dad’s Shop.

Following a break for lunch, people gathered for the slow race over a 75-yard course on First Avenue. The winner would be the driver who took the longest time to finish, without stopping or interfering with other drivers. The excitement was so great that bystanders crowded into the street around the cars, making it hard to see the vehicles inching their way along. Although the judges disqualified several cars for stopping, they eventually proclaimed Fred Bartlett the winner. He had taken 15 1/2 minutes to finish the course, idling along at a rate of less than 15 feet per minute!

While the parade and slow race were the highlights of Ford Day, merchants hoped to draw people into downtown stores for shopping. To ensure success, they built up excitement ahead of time with the announcement of a Mysterious Man and Mysterious Woman who would be mingling with the shopping crowds. Nobody knew who these two people might be, but all were well prepared for meeting them. “If you think you have the right person you should ask this question in just this way: ‘Are you the Mysterious Ford Man’ or Woman if it happens to be the woman,” instructed the Northern Idaho News. “If you are right a question will be asked you and you are to reply in these words exactly: ‘Because nobody knows what makes you ramble around.'” If this was indeed the Mysterious Man or Woman, the lucky questioner would receive a coupon for one of the prizes which included a fountain pen, a 5-pound pail of lard, or a 2-year subscription to the newspaper.

Ford Day ended that evening with a patriotic celebration for Flag Day, led by the Elks Lodge and the Boy Scouts. Nearly 1,000 people filled the school grounds to sing songs, hear speeches, and enjoy music performed by the city band. All in all, people deemed the day a grand success and they rambled home happily in their Ford Model Ts.

Sources cited

“Prizes for Ford Day, June 14,” Northern Idaho News, 30 May 1922, 1:2-5; “Town Prepared For the Fords–June 14,” Northern Idaho News, 6 June 1922, 1:3-4; “Tomorrow’s Big Flivver Show,” Northern Idaho News, 13 June 1922, 1:3; “Over 3,000 Brought In For Day’s Events,” Pend d’Oreille Review, 16 June 1922, 1:3; no title, Northern Idaho News, 20 June 1922, 2:4; George E. Mowry, The Urban Nation, 1920-1960 (New York: Hill and Wang 1965), 13; Peter Hugill, “Good Roads and the Automobile in the United States, 1880-1929,” Geographical Review 72 (July 1982): 336-337; Michael L. Berger, The Devil Wagon in God’s Country: The Automobile and Social Change in Rural America, 1893-1929 (Hamden, CT: Archon Books, 1979), 49.

Illustrations:

Ford emblem (http://myautoworld.com/ford/history/ford-t/ford-t-5/ford-t-6/ford-t-7/ford-t-7.html); Ford ad (http://myautoworld.com/ford/history/ford-t/ford-t-5/ford-t-6/ford-t-7/ford-t-7.html); Flivver headline (Northern Idaho News, 13 June 1922, 1:3); Mysterious Man and Mysterious Woman ad (Northern Idaho News, 6 June 1922, 7).

 

Posted in Uncategorized | Tagged , , , , , , | 2 Comments

1917: Wobblies, War, and Walkouts

By mid-March 1917, as the winter snow melted gradually into spring, the people of Sandpoint opened their weekly newspaper to find a few glimmers of good news. Local barbers reassured customers that the recent 10 cent price increase applied only to shaves; a haircut remained just 35 cents. The threatened railroad strike was avoided when workers got a pay raise, retroactive to January 1. And the Reverend Charles MacCaughey of the Methodist Church defended the community’s reputation, claiming that it was not a bad place. “I have never seen a town of its size,” he said, “where there were more good citizens and God-fearing people than in Sandpoint.”

While the railroad strike was averted, the threat of a major lumber strike still hung over the region. The Industrial Workers of the World (IWW) had been actively organizing in lumber camps throughout North Idaho for the past year, with similar activities throughout the Pacific Northwest. The radical union found support among loggers who worked long hours for little pay, living in remote, often squalid camps for months at a time. In March, officials from the IWW and two other labor organizations agreed to stage a coordinated lumber strike across the Pacific Northwest on July 16.

Wobblies, while not entirely welcome, were generally tolerated in logging towns like Sandpoint in early 1917. The community had filled the Rink Opera House in February to hear Elizabeth Gurley Flynn, the radical Wobby firebrand. One of the local newspapers wrote favorably about the IWW helping a destitute family in need, paying for rent and groceries until the father was able to find work.

The tolerant atmosphere changed suddenly in early April when the United States declared war on Germany and entered the conflict in Europe. Bonner County residents once again packed the Rink Opera House, this time to hear patriotic speeches and learn how they could support the war effort. Citizens bought Liberty bonds and donated money to the Red Cross, while women of the local Red Cross auxiliary prepared supplies for military hospitals. President Woodrow Wilson instituted a nationwide draft and announced that all men aged 21-30 had to register on June 5. Idaho Governor Moses Alexander urged towns to organize a home guard of patriotic citizens to “occasionally march up and down the main streets of the communities in which they live,” carrying American flags, however, instead of rifles.

An undercurrent of coercion lurked behind these patriotic efforts. The draft was, by definition, coercive. Bonner County registered 1,148 men, including 254 immigrants who intended to apply for citizenship. The local press praised men who enlisted in the military and branded any who failed to register for the draft as “slackers.” Donations to the Red Cross were theoretically voluntary but before the end of 1917 the local chapter published a list of those who refused to donate despite having the financial resources to do so. When public schools opened in the fall of 1917, the high school offered French and Spanish classes in place of German, following a nationwide trend to end instruction in the language of an enemy.

Wartime seemed to create a general wariness as well. Frank Yocam noticed a “skulking figure” tacking a small poster up near the Northern Pacific depot in May 1917. He investigated and found a placard that read, “Politicians, capitalists, preachers, newspaper editors and other stay-at-home patriots are never found in the battlefield. Why should workingmen?” Local authorities branded this as treason and began watching for the perpetrator.

It was during this time of intense patriotism that the timber strike was scheduled. Early in the spring, many lumber companies in the Idaho Panhandle wanted to get a sense of just how many IWW members were working in their camps. They asked employees to fill out cards with their personal information, along with an assurance that they were not Wobblies. Angry loggers refused to sign and many walked out instead. Tensions in the region increased in late April after an unknown person shot a soldier guarding a railroad bridge near Spokane, wounding him in the leg. The incident was blamed on Wobblies, and two days later soldiers stormed the IWW hall in Spokane. A riot ensued. Far from the city, short wildcat strikes hit isolated logging camps and river drives. The Inland Northwest was a tinderbox, ready to explode.

The spark came in the afternoon of June 14 when 144 men at Humbird Lumber Company’s Camp 6 laid down their tools and walked off the job. Word of the strike spread like wildfire to other isolated camps and before the end of that day, there were 500 striking Wobblies on the streets of Sandpoint. They laid out the familiar IWW demands: an 8-hour day, instead of the current 10 hours; minimum pay of $60 per month, including board; smaller bunkhouses designed for a maximum of 12 men instead of the current ones which often were large enough for 80, or even as many as 150 men; bathing facilities; and, of course, better food.

Pend d’Oreille Review, 22 June 1917, 1:3.

The local newspaper correctly predicted that the strike might “eventually prove to affect the lumber industry of the entire northwest.” In just one week’s time, 2,400 loggers had joined the strike in North Idaho, and it soon engulfed most of the logging camps east of the Cascade Mountains. When workers on the coast joined the strike in mid-July, on the previously scheduled date, logging across the entire Pacific Northwest essentially shut down.

As soon as the scope of the strike became apparent, Humbird Lumber Company turned draft horse teams out to pasture, closed up the camps, and settled in for the long haul. Since the IWW strike affected only logging crews and not the more skilled sawmill workers, company officials were not too worried. They had enough logs in the mill pond to keep both the Sandpoint and Kootenai mills running through most of the summer. Because sawmills were forced to limit production, companies were able to reduce their excess inventory of lumber in their yards and avoid further price reductions.

State and local officials reacted with concern as the IWW strike neared the end of its first month. Governor Alexander came to Coeur d’Alene in early July to assess the situation personally, and he remained until the end of the month to meet with local officials, owners of lumber companies, and members of the IWW. He spent an hour and a half at the IWW hall in Sandpoint, in the basement of the Abbott building, talking with the men there and gathering copies of their literature. The governor kept his sense of humor during the verbal exchange, listening to the men while dispensing advice about their activities. He noted that although it was illegal to hand out revolutionary literature, picket, or commit sabotage, he believed they had the right to strike. Furthermore, Alexander had become so concerned about the poor living conditions in camps that he had directed state health officials to investigate. He warned an incoming state official not to give the owners of lumber companies “any more of the deal than you give the poor devil with overalls on.” Then Alexander observed, “The timber companies were too fast for me.”

Throughout the strike, Governor Alexander resisted calls to bring in federal troops, preferring instead to use recently passed Idaho laws aimed at the IWW. Local officials took a more confrontational approach. A few days before the governor came to Sandpoint, Bonner County Sheriff Remer went to the IWW hall with newspaper reporters, other county officials, and three American flags. In what seemed like a deliberate provocation, the sheriff asked the IWW men gathered to hang one of the flags outside the entrance “so we will know where you are at.” The other two flags were hung on the walls, and the Wobblies promised their visitors that the flags would be treated with respect.

Just a few days after Governor Alexander’s visit, however, the sheriff returned to the IWW hall to close it down, claiming that it was violating state laws. After hours of discussion with members, the local IWW voted to close only under protest.

The sheriff tightened his grip on the Wobblies in late August by arresting three local leaders under Idaho’s criminal syndicalism law against advocating “crime, sabotage, violence, or other unlawful methods of terrorism as a means of accomplishing industrial or political reform.” A search warrant helped turn up IWW literature at the Wisconsin Hotel during the arrest of John Wright, former secretary of the local IWW, and William Deneke, an active member. The third man, John Currie, was arrested for picketing. Similar arrests across the Panhandle put hundreds of men in jail. The jail in St. Maries became so crowded that officials had to build a stockade to hold the overflow of Wobblies awaiting trial.

By late August, regional lumbermen began expressing interest in settling the strike. At a meeting in Seattle, they stressed the importance of getting the mills running again to serve the war effort and asked loggers return to work on a 10-hour day to finish important government contracts. Once these were fulfilled, the owners promised that employees could vote to continue on either a 10-hour or 8-hour basis.

Although this offer was a non-starter, both sides in the Inland Northwest were fatigued by early September. Striking workers, who had been without pay all summer, met in Spokane at the Finlanders Hall and voted to return to work on September 10. Lumber company owners met at the Loggers’ Club in Spokane to discuss their proposal. Company owners across the Pacific Northwest agreed to support an 8-hour day but said that it wouldn’t go into effect until this became an industry standard nationwide. To reach this goal, they agreed to push for congressional action to mandate an 8-hour day for all logging and lumber mill workers. Equally important, regional operators voted to standardize the design of logging camps to include well lighted and ventilated quarters with showers.

Striking loggers began straggling back to distant camps, carrying small packs with clothes, bedroll, and tools. When asked about membership in the IWW, the men all denied belonging to the union even though many were well known Wobblies. For their part the companies, desperate to restart their operations, accepted the denials and offered work to all who came. By the end of September, F.C. Culver of Sandpoint Lumber & Pole Company told the local newspaper, “Our camps are filled, our mill is running and we are happy.”

Culver’s celebration might have been premature. Yes, loggers were back at work, sawmills were turning out boards once again, but many issues remained unresolved. And the Wobblies were not yet ready to give up their fight.

This is the second of  three blogs on the lumber strike of 1917. I hope to have the final installment by early fall.

Sources Cited

Barbers’ Statement of Prices, Pend d’Oreille Review, 23 March 1917, 1:2; Strike Situation Cleared Up, Pend d’Oreille Review, 23 March 1917, 1:4; Says Sandpoint Isn’t Bad Town, Pend d’Oreille Review, 23 March 1917, 1:6; Robert C. Ficken, “The Wobbly Horrors: Pacific Northwest Lumbermen and the Industrial Workers of the World, 1917-1918,” Labor History 24 (Summer 1918), 326, 328-329; Destitute Family Cared For By I. W. W., Northern Idaho News, 6 February 1917, 5:3; Patriotic Meeting Fills Opera House, Northern Idaho News, 3 April 1917, Second Section, 1:5; First Red Cross Shipment Ready, Pend d’Oreille Review, 18 May 1917, 1:5; Features of Conscription Bill, Pend d’Oreille Review, 11 May 1917, 1:3-4; How To Answer Questions On Registration Day, Northern Idaho News, 29 May 1917, 1:5-6; Urge Home Guard In Every Village, Northern Idaho News, 15 May 1917, 1:6; Registration in Bonner is 1148, Pend d’Oreille Review, 8 June 1917, 1:1; Draft Returns Of County Complete, Northern Idaho News, 12 June 1917, 1:4; County Over-Subscribes To Red Cross Fund, Northern Idaho News, 26 June 1917, 1:5-6; Slacker Nabbed, Northern Idaho News, 17 July 1917, 8:4; Red Cross Drive Slacker List, Northern Idaho News, 18 December 1917, Second Section, 1:5; City Schools Will Open Sep. 4, Pend d’Oreille Review, 17 August 1917, 1:6; A Treasonable Utterance, Pend d’Oreille Review, 11 May 1917, 1:4; Robert Anthony Perrin Jr., “Two Decades of Turbulence: A Study of the Great Lumber Strikes in Northern Idaho (1916-1936)” (M.A. thesis, University of Idaho, 1961), 74-77; Two Camps Strike For Better “Chuck,” Pend d’Oreille Review, 15 June 1917, 1:3; Timber Workers Go On Strike, Northern Idaho News, 19 June 1917, 1:4; 2400 North Idaho Loggers Walk Out, Pend d’Oreille Review, 22 June 1917, 1:3; J.P. Weyerhaeuser to Tom Humbird, 1 August 1917:2, file 45, box 28, P930 Weyerhaeuser Family Papers, Minnesota Historical Society; Council Of Defense Are In Session, Northern Idaho News, 10 July 1917, 1:1; Gov. Alexander Visits Sandpoint, Northern Idaho News, 24 July 1917, 1:6; Flags in I. W. W. Hall, Northern Idaho News, 17 July 1917, 1:6; Stars And Stripes Over I.W.W. Hall, Pend d’Oreille Review, 20 July 1917, 1:3-4; I. W. W. Hall Closed Yesterday, Northern Idaho News, 24 July 1917, 1:1; I.W.W. “Cowed” By Governor, Pend d’Oreille Review, 3 August 1917, 1:3-4; Three I.W.W.’s Arrested Under Syndicalism Law, Pend d’Oreille Review, 24 August 1917, 1:2; https://en.wikipedia.org/wiki/Criminal_syndicalism, accessed 12 June 2017; Lumbermen Make Strike Offer, Northern Idaho News, 21 August 1917, 3:3; Stockade for St. Maries, Northern Idaho News, 28 August 1917, 8:4; I. W. W. Men To Stand District Trial, Northern Idaho News, 28 August 1917, 1:2; I.W.W.’s Bound Over In Probate Court, Pend d’Oreille Review, 31 August 1917, 1:3-4; The Inland Empire, The Timberman, September 1917:66; 8-Hour Day Sticker In Lumber Camps, Pend d’Oreille Review, 14 September 1917, 1:5; Lumberjacks Returning To Their Jobs In The Woods, Pend d’Oreille Review, 28 September 1917, 1:5; I.W.W. History Project, http://depts.washington.edu/iww/.

Posted in Uncategorized | Tagged , , , , , , , , , | 2 Comments